EasyManua.ls Logo

HID iCLASS SE - Mechanical Data; Electrical Characteristics; Figure 18: 6500-101-03 Mechanical Drawing; Table 31: Electrical Characteristics 6500-101-03

HID iCLASS SE
52 pages
Print Icon
To Next Page IconTo Next Page
To Next Page IconTo Next Page
To Previous Page IconTo Previous Page
To Previous Page IconTo Previous Page
Loading...
iCLASS SE Reader Module Hardware Developer’s Guide, SE3200-902, Rev. C.1
Page 47 of 52 February 2014
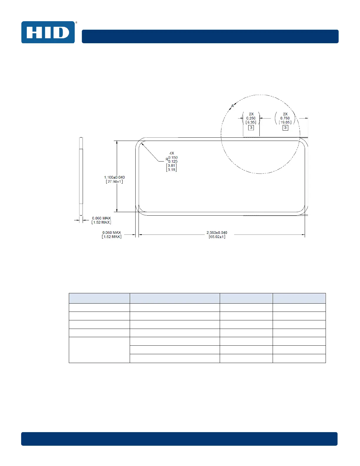
7.5.1 Mechanical Data
Detailed drawings are available at the iCLASS SE Reader Module micro-site.
The antenna has two 76.2mm 28AWG mag wire leads for interconnection to the
iCLASS SE Reader Module. For soldering, a strip end with 3.81mm is included.
Figure 18: 6500-101-03 Mechanical Drawing
7.5.2 Electrical Characteristics
Table 31: Electrical Characteristics 6500-101-03
Parameter
Measurement Frequency
Typ
Unit
Number of turns 89 -
DC Resistance 33
SRF 1 MHz
Inductance 1kHz 800 µH
Impedance
50kHz 29+j248
100kHz 31+j489
500kHz 50+j2674

Table of Contents

Other manuals for HID iCLASS SE

Related product manuals