EasyManua.ls Logo

HM Electronics EOS HD - Page 119

Default Icon
127 pages
Print Icon
To Next Page IconTo Next Page
To Next Page IconTo Next Page
To Previous Page IconTo Previous Page
To Previous Page IconTo Previous Page
Loading...
105
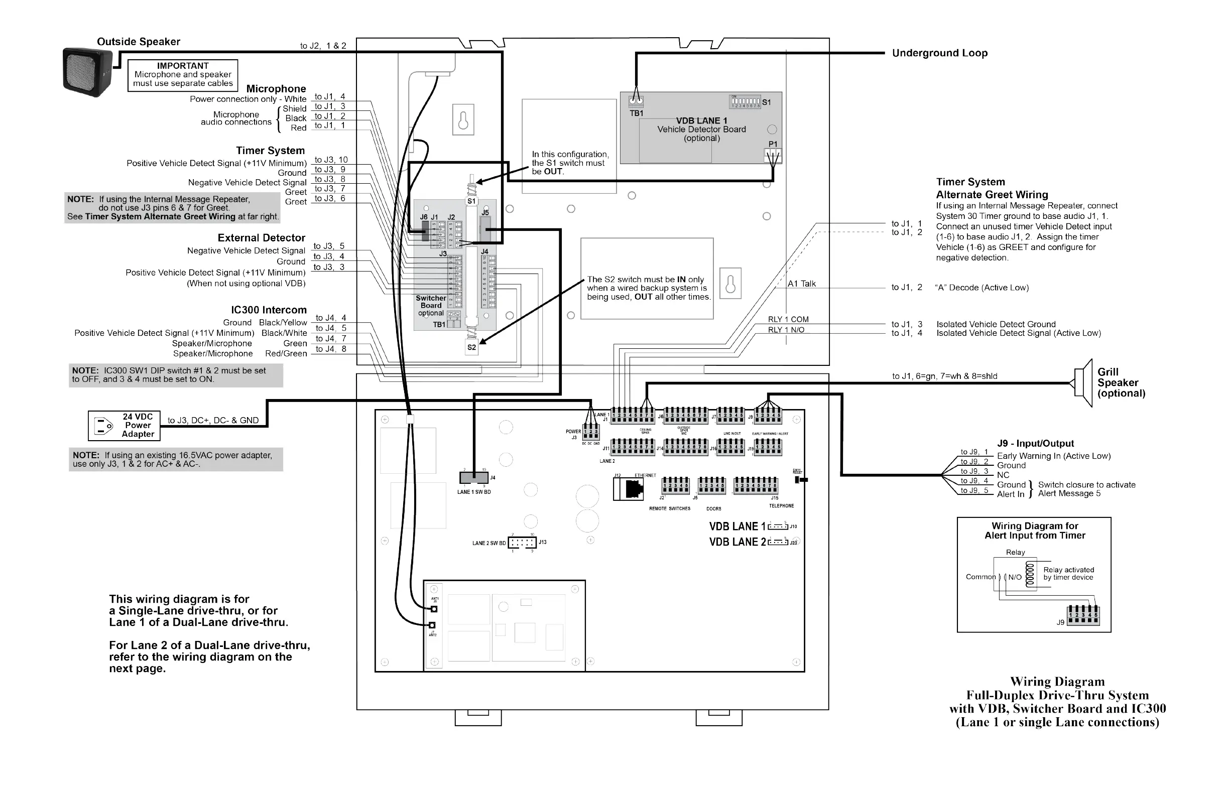
Figure 31. Full-Duplex Drive-Thru System with VDB, Switcher Board and IC300 (Lane 1 or Single Lane connections)