EasyManua.ls Logo

HM Electronics EOS HD - Page 122

Default Icon
127 pages
Print Icon
To Next Page IconTo Next Page
To Next Page IconTo Next Page
To Previous Page IconTo Previous Page
To Previous Page IconTo Previous Page
Loading...
108
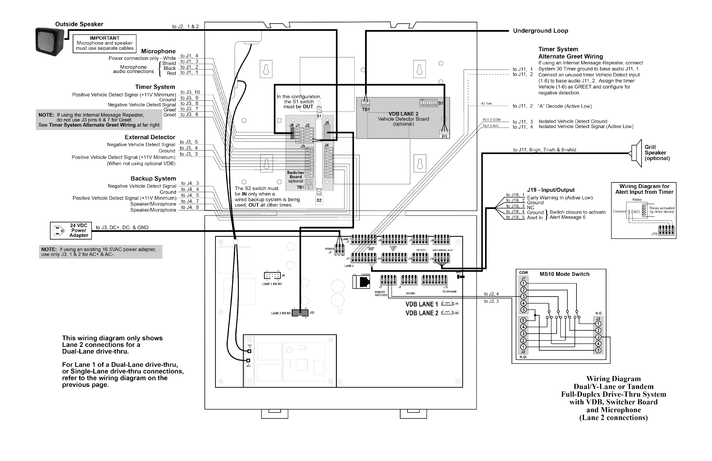
Figure 34. Full-Duplex Drive-Thru System with VDB, Switcher Board and Microphone (Lane 2 connections)