EasyManua.ls Logo

HM Electronics EOS HD - Page 121

Default Icon
127 pages
Print Icon
To Next Page IconTo Next Page
To Next Page IconTo Next Page
To Previous Page IconTo Previous Page
To Previous Page IconTo Previous Page
Loading...
107
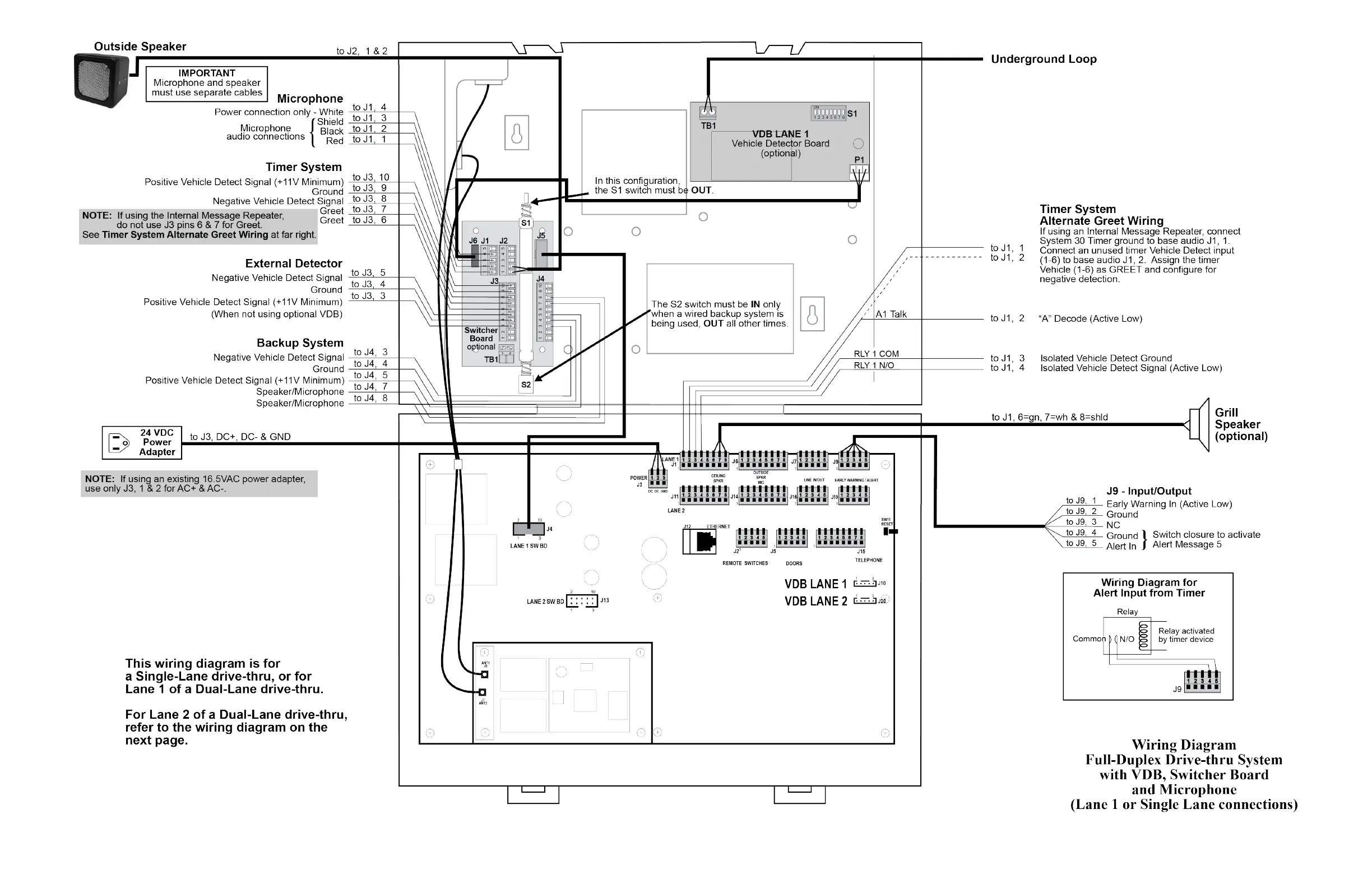
Figure 33. Full-Duplex Drive-Thru System with VDB, Switcher Board and Microphone (Lane 1 or Single Lane connections)