EasyManua.ls Logo

HM Electronics EOS HD - Page 124

Default Icon
127 pages
Print Icon
To Next Page IconTo Next Page
To Next Page IconTo Next Page
To Previous Page IconTo Previous Page
To Previous Page IconTo Previous Page
Loading...
110
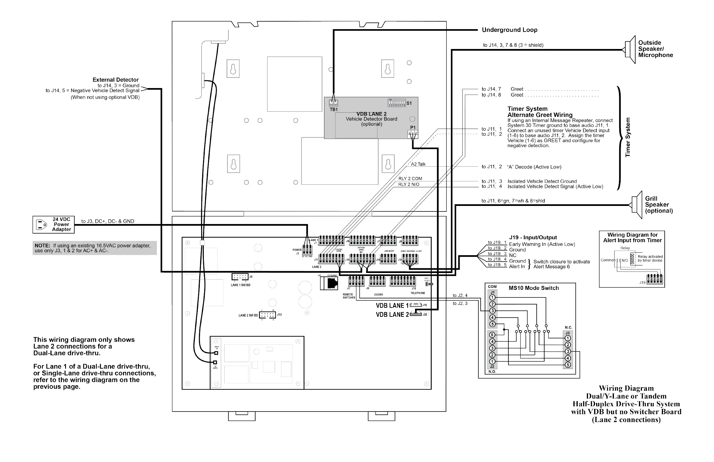
Figure 36. Half-Duplex Drive-Thru System with VDB but no Switcher Board (Lane 2 connections)