EasyManua.ls Logo

HM Electronics EOS HD - Page 125

Default Icon
127 pages
Print Icon
To Next Page IconTo Next Page
To Next Page IconTo Next Page
To Previous Page IconTo Previous Page
To Previous Page IconTo Previous Page
Loading...
111
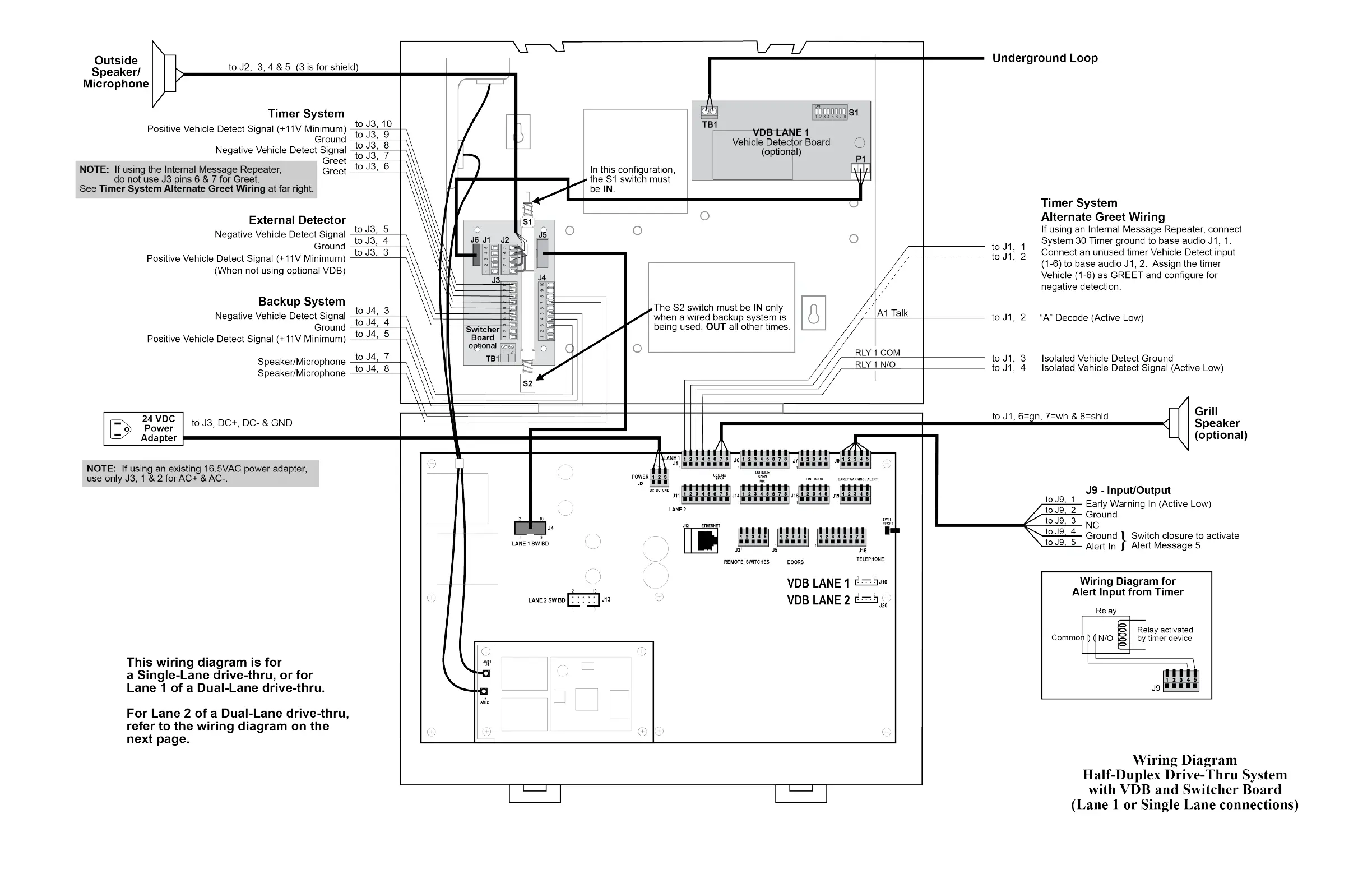
Figure 37. Half-Duplex Drive-Thru System with VDB and Switcher Board (Lane 1 or Single Lane connections)