EasyManua.ls Logo

HM Electronics EOS HD - Page 126

Default Icon
127 pages
Print Icon
To Next Page IconTo Next Page
To Next Page IconTo Next Page
To Previous Page IconTo Previous Page
To Previous Page IconTo Previous Page
Loading...
112
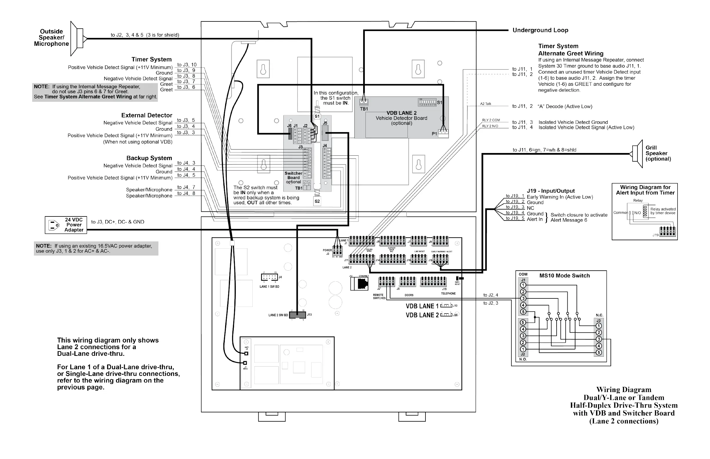
Figure 38. Half-Duplex Drive-Thru System with VDB and Switcher Board (Lane 2 connections)