EasyManua.ls Logo

HygroMatik Basic - Page 86

HygroMatik Basic
94 pages
Print Icon
To Next Page IconTo Next Page
To Next Page IconTo Next Page
To Previous Page IconTo Previous Page
To Previous Page IconTo Previous Page
Loading...
Page 86
Änderung Datum Name
Bearb.
Gepr.
Norm
Datum
Urspr. Ers.dErs.fZust.
Blatt 1
von 2 Bl.
(Zeichnung Nr.)(Benennung)
(Datei)
d
HYGROMATIK
Lise-Meitner-Str. 3
D-24558 Henstedt-Ulzburg
Germany
Telefax
+49-(0)4193 / 895 - 33
Phone
+49-(0)4193 / 895 - 0
20.01.09
Lue
ST3
5
X1
2
1
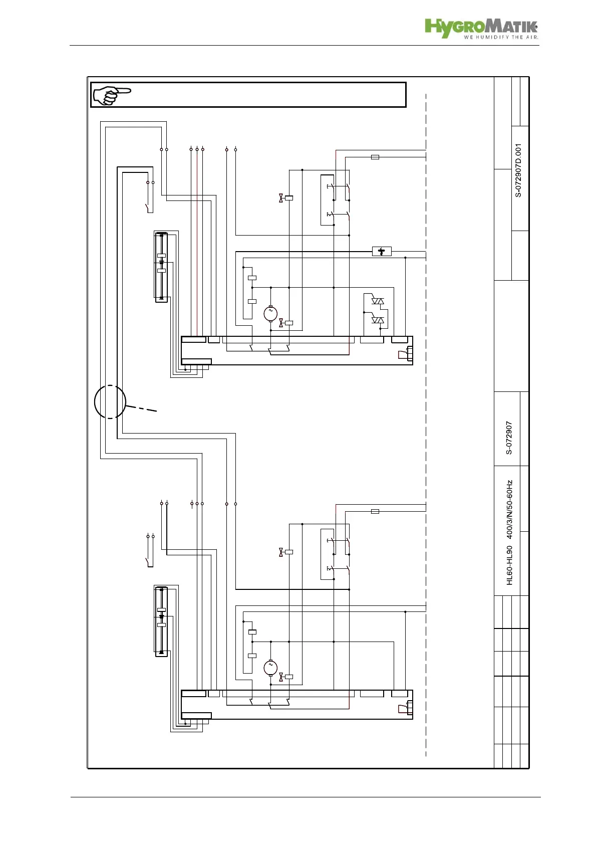
interlock system
Sicherheitskette
Y1
M
M1
ST1
Basis Platine/ basic electronic
13
12
16
111092
5
3
4
42
S1b
F1
S1a
15
input control signal
Eingang Regelsignal
28 3029
ST2
28 3029
6
7
18
17
K1
22
21
ST6
23 24
G3
G2
G1
Schwimmerstellung
G3 max. Niveau
G2 Füllen aus
G1 Trockengang
rot/red - G2
blau/blue - G3
schwarz/black
weiß/white - G1
1,6AF
b
c
Y2
Super Flush
- parallel zur Pumpe M1
- parallel to pump M1
ST5
ST4
ST7
2 Thermoschalter für jedes
Halbleiterrelais)
2 thermo switches for each
solid state relay
Steuerungsteil
für Master-Gerät HL 60 - 90
control stage
for master unit HL 60 - 90
3
2 Halbleiterrelais
2 solid state relays
-
+
-
+
ST3
4
5
X1
2
1
interlock system
Sicherheitskette
Y1
M
M1
ST1
Basis Platine/ basic electronic
13
12
16
111092
5
3
4
42
S1b
F1
S1a
15
input control signal
Eingang Regelsignal
28 3029
ST2
28 3029
6
7
18
17
K1
22
ST6
23 24
G3
G2
G1
Schwimmerstellung
G3 max. Niveau
G2 Füllen aus
G1 Trockengang
rot/red - G2
blau/blue - G3
schwarz/black
weiß/white - G1
1,6AF
Y2
Super Flush
- parallel zur Pumpe M1
- parallel to pump M1
ST5
ST4
ST7
3
Leistungsteilsteil
für Slave-Gerät HL 60 - 90
S-072913
power stage
for slave unit HL 60 - 90
S-072913
K11
K11
12
13
11
14
25
21
25
Steuerungsteil
für Slave-Gerät HL 60 - 90
control stage
for slave unit HL 60 - 90
4
Y(+)
+24
-
Y(+)
-
X1
X1
K11
12
13
11
14
K11
K11 Slave 20.01.09
Lue
STB 2 12.11.12
Lue
Leistungsteilsteil
für Master-Gerät HL 60 - 90
S-042901-6
power stage
for master unit HL 60 - 90
S-042901-6
X1 3,4,5 08.05.09
Lue
Bauseitige Verdrahtung
external wiring
Note: The steam humidifier is only operationable if the contact
across terminal 1 and 2 (the safety interlock) is closed.

Table of Contents

Related product manuals