EasyManua.ls Logo

IBM x3550 M4 Type 7914 - Page 350

IBM x3550 M4 Type 7914
868 pages
To Next Page IconTo Next Page
To Next Page IconTo Next Page
To Previous Page IconTo Previous Page
To Previous Page IconTo Previous Page
Loading...
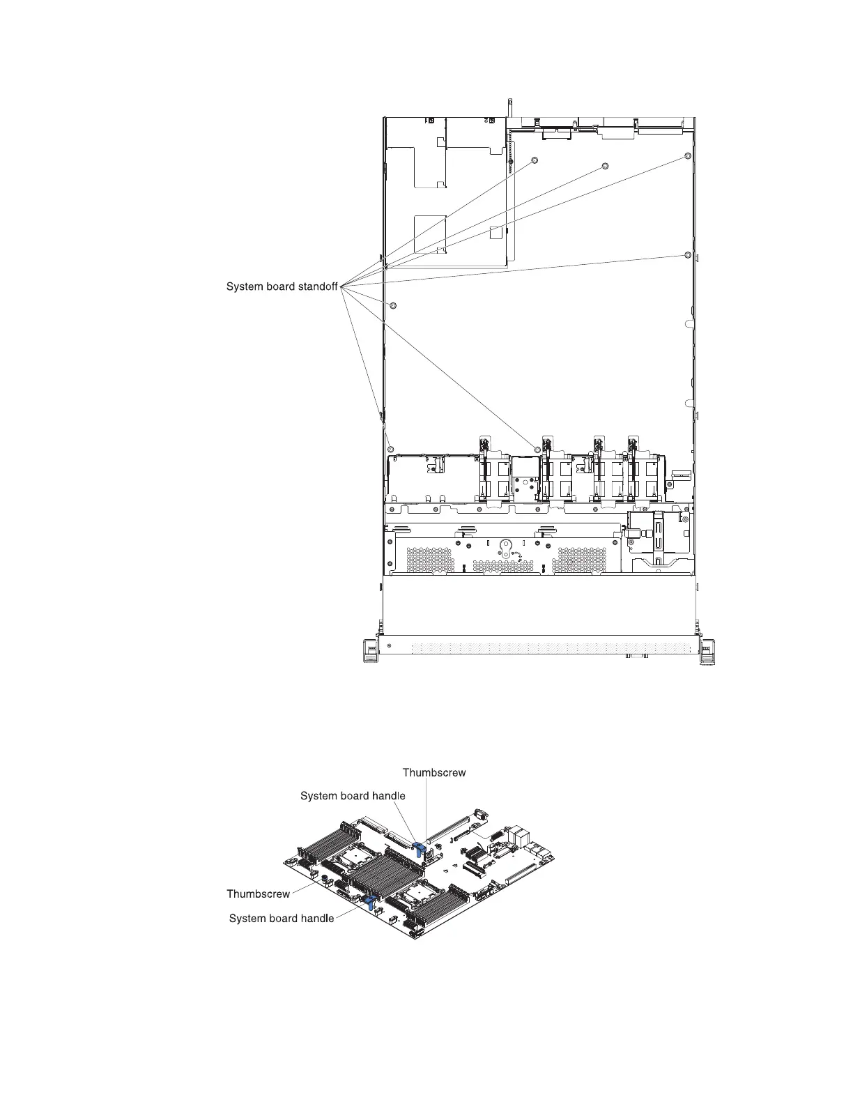
3. Fasten the two thumbscrews (one is near PCI slot 2 and one is between fans 4
and 5).
4. Rotate the fan assembly bracket down toward the rear of the server.
Figure 241. System-board standoffs
Figure 242. Thumbscrews engagement
332 IBM System x3550 M4 Type 7914: Installation and Service Guide

Table of Contents

Related product manuals