EasyManua.ls Logo

INFOSEC E6 LCD-RT Evolution - Safety Instructions

INFOSEC E6 LCD-RT Evolution
86 pages
Print Icon
To Next Page IconTo Next Page
To Next Page IconTo Next Page
To Previous Page IconTo Previous Page
To Previous Page IconTo Previous Page
Loading...
INFOSEC UPS SYSTEM - 4, rue de la Rigotière - 44700 Orvault - FRANCE - www.infosec-ups.com
Hot Line Tel + 33 (0)2 40 76 15 82 - Fax + 33 (0)2 40 94 29 51 - hotline@infosec.fr 05 13 AA 59 208 13
2
User guide
1 . S AF E T Y I N S T R U C T I O N S S e c u r i t y
IMPORTANT!
CAUTION: Before performing the procedures in this document, read and follow the safety instructions and
important regulatory information in your Safety, Environmental, and Regulatory Information document.
This manual contains important instructions that you should follow during installation and maintenance of the UPS and
batteries. Please read all instructions before operating the equipment and save this manual for future reference.
1.1 UPS Location Warnings:
Install your UPS indoors, away from excess moisture or heat, direct sunlight, dust and conductive contaminants.
Install your UPS in a structurally sound area. Your UPS is extremely heavy; take care when moving and lifting the unit.
Only operate your UPS at indoor temperatures between 0° C and 40° C. (between 32°F and 104°F )
Leave adequate space around all sides of the UPS for proper ventilation.
Do not install the UPS near magnetic storage media, as this may result in data corruption.
Do not mount unit with its front or rear panel facing down (at any angle). Mounting in this manner will seriously inhibit
the unit's internal cooling, eventually causing product damage not covered under warranty.
1.2 Connection Warnings:
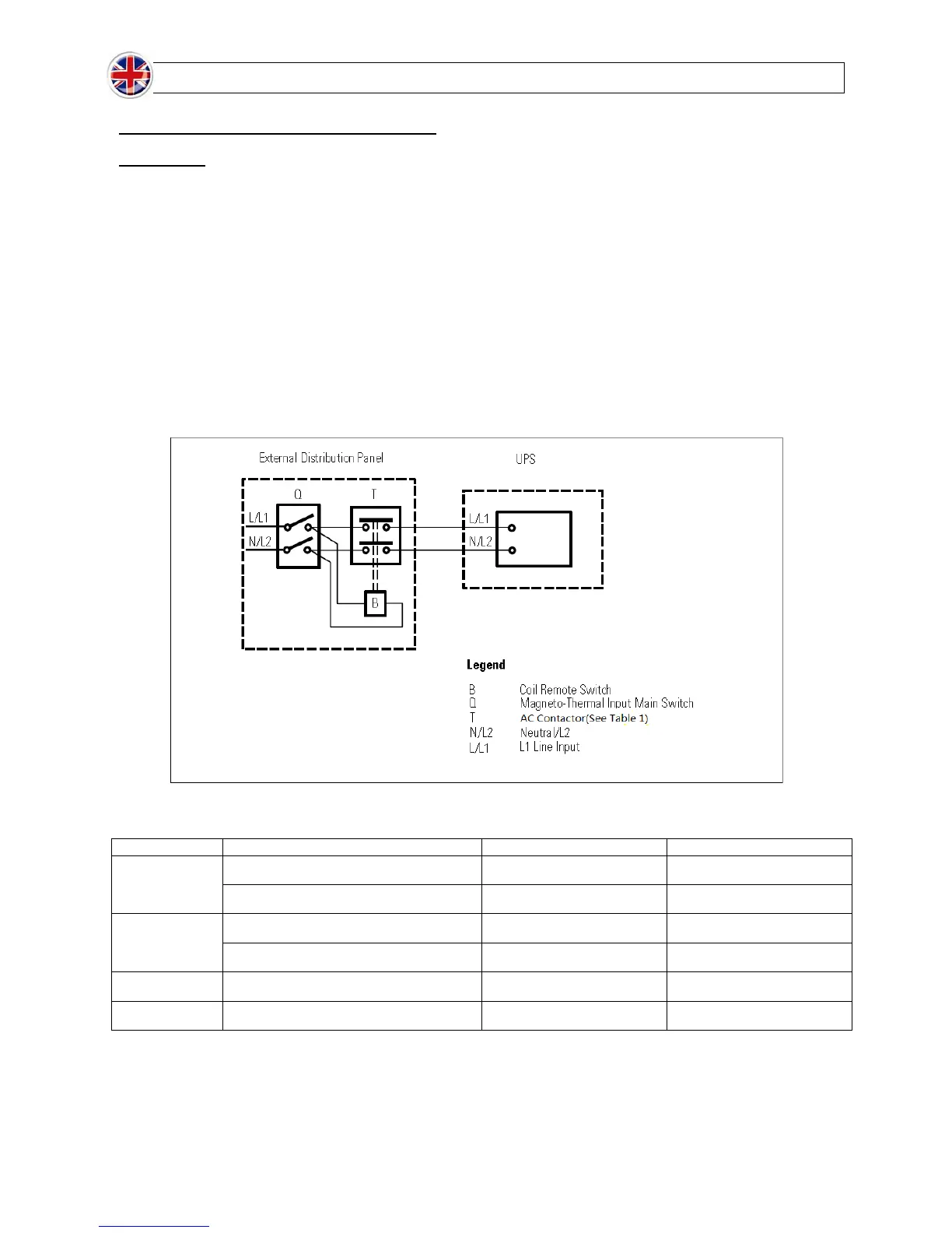
There is no standard feedback protection inside, please isolate the UPS before working according to this circuit.
The following table lists AC contactor that can be used as back feed protection devices.
Table 1:
Module type
Manufacturer
Type
Rating
5 K
Tianshui 213 Electrical Apparatus Co.,Ltd
GSC1(CJX4-d)-4011
220Vac,40A
LS Industrial systems Co.,Ltd.
GMC(D)-32
600Vac,45A
6 K
Tianshui 213 Electrical Apparatus Co.,Ltd
GSC1(CJX4-d)-4011
220Vac,40A
LS Industrial systems Co.,Ltd.
GMC(D)-32
600Vac,45A
8 K
Tianshui 213 Electrical Apparatus Co.,Ltd
GSC1(CJX4-d)-6511
220Vac,65A
10 K
Tianshui 213 Electrical Apparatus Co.,Ltd
GSC1(CJX4-d)-6511
220Vac,65A
This UPS should be connected with TN earthing system
The power supply for this unit must be single-phase rated in accordance with the equipment nameplate. It also must
be suitably grounded
Use of this equipment in life support applications where failure of this equipment can reasonably be expected to cause
the failure of the life support equipment or to significantly affect its safety or effectiveness is not recommended. Do not
use this equipment in the presence of a flammable anesthetic mixture with air, oxygen or nitrous oxide.
Connect your UPS power module’s grounding terminal to a grounding electrode conductor.

Table of Contents

Related product manuals