EasyManua.ls Logo

INFOSEC E6 LCD-RT Evolution - Manuel de Lutilisateur

INFOSEC E6 LCD-RT Evolution
86 pages
Print Icon
To Next Page IconTo Next Page
To Next Page IconTo Next Page
To Previous Page IconTo Previous Page
To Previous Page IconTo Previous Page
Loading...
INFOSEC UPS SYSTEM - 4, rue de la Rigotière - 44700 Orvault - FRANCE - www.infosec-ups.com
Hot Line Tel + 33 (0)2 40 76 15 82 - Fax + 33 (0)2 40 94 29 51 - hotline@infosec.fr 05 13 AA 59 208 13
30
Manuel de l'utilisateur
1 . C O N S IG N E S D E S É C U R I T É - S é c u r i t é
IMPORTANT !
PRUDENCE : Avant d'effectuer les procédures de ce document, veuillez lire et suivre les consignes de
sécurité ainsi que l'information règlementaire importante de votre document Information réglementaire, de
sécurité et environnementale.
Ce manuel contient des instructions importantes que vous devez suivre pendant l'installation et l'entretien de l’onduleur et
des batteries. Veuillez lire toutes les instructions avant de faire fonctionner l'équipement et conservez ce manuel comme
matériel de référence.
1.1 Mises en garde concernant l'emplacement de l'ONDULEUR :
Installez l’onduleur à l'intérieur, à l'abri de sources d'humidité ou de chaleur, de la lumière directe du soleil, de la
poussière et de matières polluantes.
Installez l’onduleur dans une zone structurellement solide. L’onduleur est très lourd ; soyez prudent lorsque vous le
déplacez ou le soulevez.
Faites fonctionner l’onduleur à l'intérieur uniquement, à une température ambiante de 0 °C à 40 °C (entre 32 °F et
104 °F ).
Laissez suffisamment d'espace libre autour de l’onduleur pour une ventilation adéquate.
N'installez pas l'onduleur près d'un système de stockage magnétique, car cela peut entraîner une corruption des
données.
Les panneaux avant ou arrière de l’onduleur ne doivent pas être montés tournés vers le bas (sous aucun angle). Ce
type de montage empêcherait le système de refroidissement interne du système de fonctionner correctement, provoquant
éventuellement des dommages non couverts par la garantie.
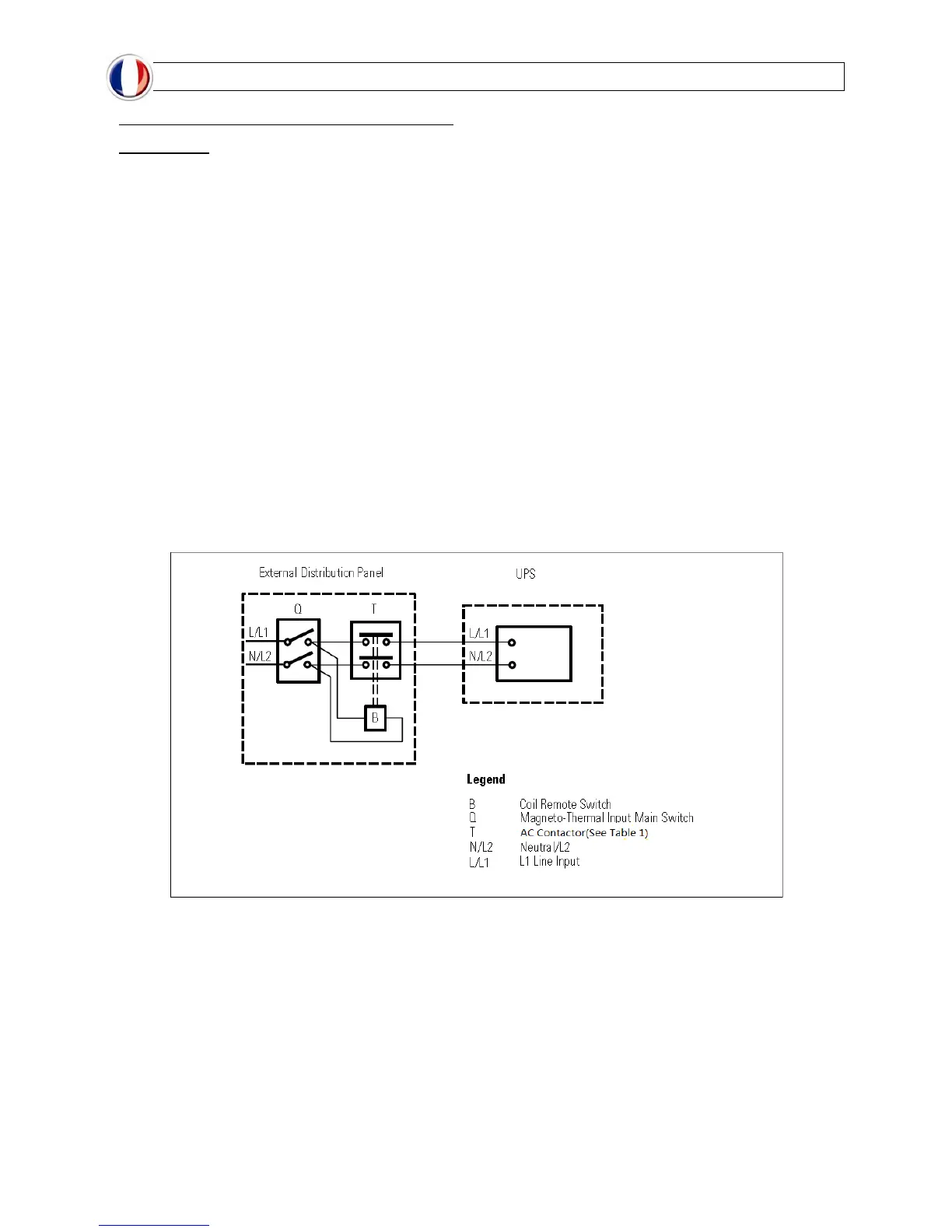
1.2 Mises en garde concernant la connexion :
Il n'y a pas de dispositif standard de protection contre le renvoi de tension à l'intérieur, donc veuillez isoler l’onduleur en
accord avec ce diagramme avant de le mettre en fonctionnement.

Table of Contents

Related product manuals