EasyManua.ls Logo

Jede QUATTRO - 26. Wiring Diagram (Motors)

Jede QUATTRO
58 pages
Print Icon
To Next Page IconTo Next Page
To Next Page IconTo Next Page
To Previous Page IconTo Previous Page
To Previous Page IconTo Previous Page
Loading...
QUATTROjskjsdfdsfdzxczxczxczxczxc
QUATTRO
Rev. A 2012-09-10Service manual
55
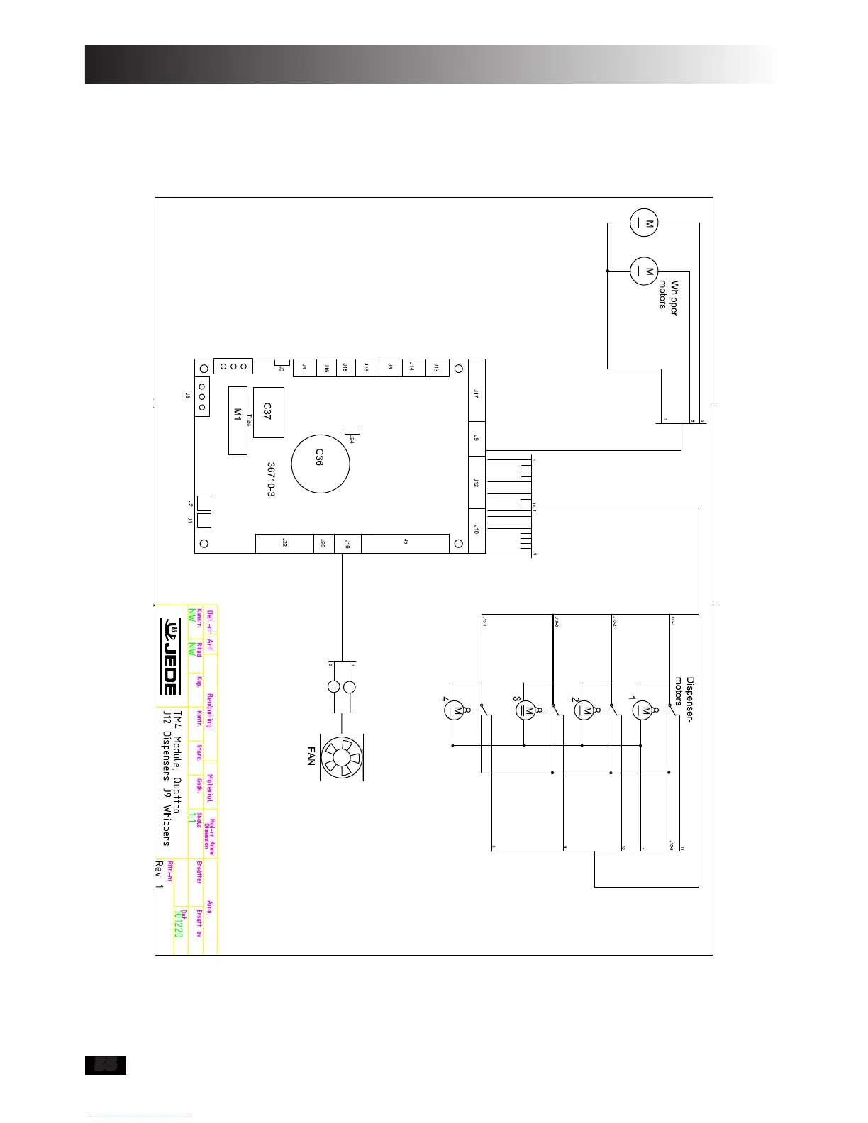
26 Wiring diagram, motors

Table of Contents