EasyManua.ls Logo

Mitsubishi Electric NZ2MFB2-16A - Page 46

Mitsubishi Electric NZ2MFB2-16A
150 pages
To Next Page IconTo Next Page
To Next Page IconTo Next Page
To Previous Page IconTo Previous Page
To Previous Page IconTo Previous Page
Loading...
44
3 SPECIFICATIONS
3.2 Performance Specifications
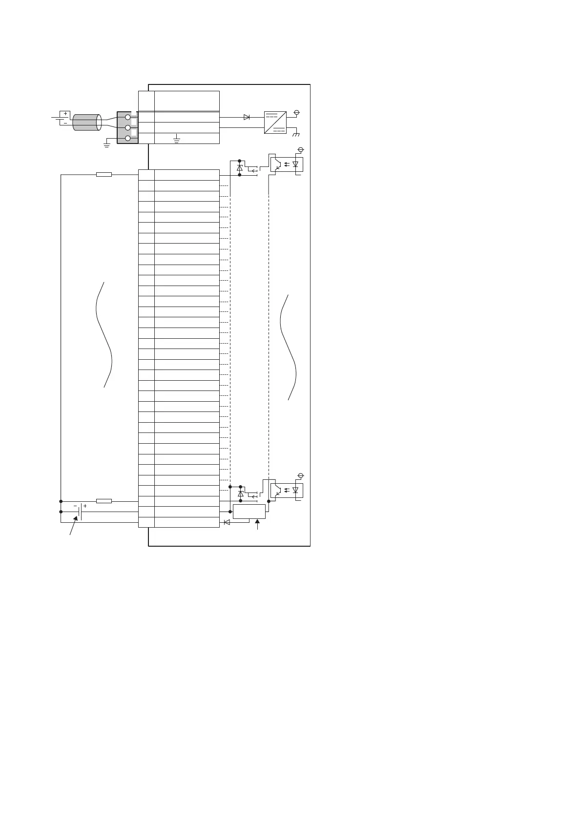
External connection
*1 Only one wire can be connected to a terminal of the terminal block for module power supply and FG or the terminal block for output.
Multiple wires cannot be connected to a terminal. Connecting two or more wires may cause a poor contact.
UNIT POWER
CABLE
FG
1
2
3
1
2
3
+24V
24G
1
2
3
4
5
6
7
8
9
10
11
12
13
14
15
16
17
18
19
20
21
22
23
24
25
26
27
28
29
30
31
32
33
34
Y0
Y1
Y2
Y3
Y4
Y5
Y6
Y7
Y8
Y9
YF
YA
YB
YC
YD
YE
Y10
Y11
Y12
Y13
Y14
Y15
Y16
Y17
Y18
Y19
Y1A
Y1B
Y1C
Y1D
Y1E
Y1F
COM+
CTL-
Signal name
Pin
No.
Non-insulated
Terminal block for module
power supply and FG
*1
Module power
supply
Terminal block
for output
Load
Load
External power supply for
the output part and load
power supply (common)
Constant-voltage
circuit

Table of Contents

Related product manuals