EasyManua.ls Logo

Molift Rail System - Page 34

Molift Rail System
72 pages
Print Icon
To Next Page IconTo Next Page
To Next Page IconTo Next Page
To Previous Page IconTo Previous Page
To Previous Page IconTo Previous Page
Loading...
34
Molift Rail System / www.molift.com
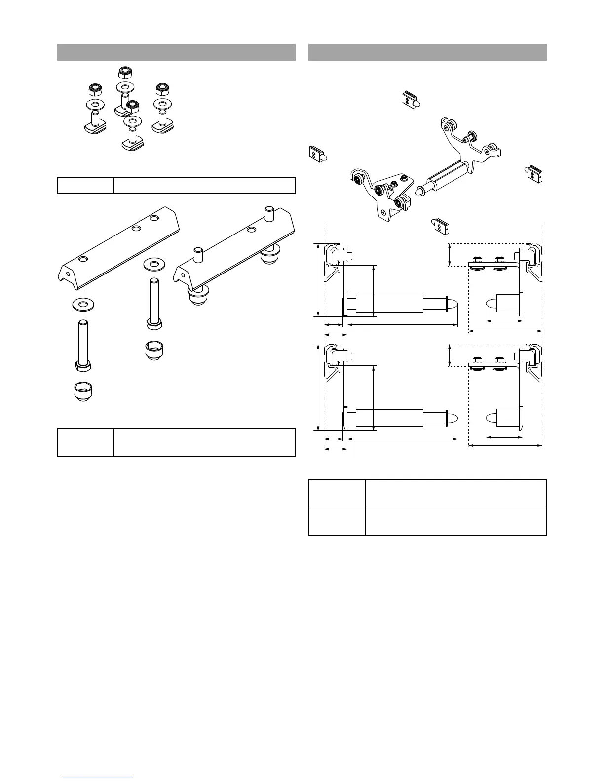
Traverse Mounting kit
Article no.
110 93 45 Traverse mounting kit (under trolleys)
Article no.
110 9353 Traverse mounting kit (between
primary rail)
Traverse Trolley for Wall rail
Traverse Trolley for Wall Rail (Includes end stops)
52,5
42,5 247
51,5
165
82
165
Wall,
Rail H85 W
Wall,
Rail H85 W
116
52,5
42,5 247
51,5
165
82
194
145
Article no.
110 9163 Wall mounted traverse trolley set
RH112
110 9166 Wall mounted traverse trolley set
RH142

Related product manuals