EasyManua.ls Logo

Napoleon Vector TLV50N - Rough Framing - before Appliance Installation; Minimum Framing Dimensions

Napoleon Vector TLV50N
144 pages
Print Icon
To Next Page IconTo Next Page
To Next Page IconTo Next Page
To Previous Page IconTo Previous Page
To Previous Page IconTo Previous Page
Loading...
W415-4121 / B / 04.20.23
EN
22
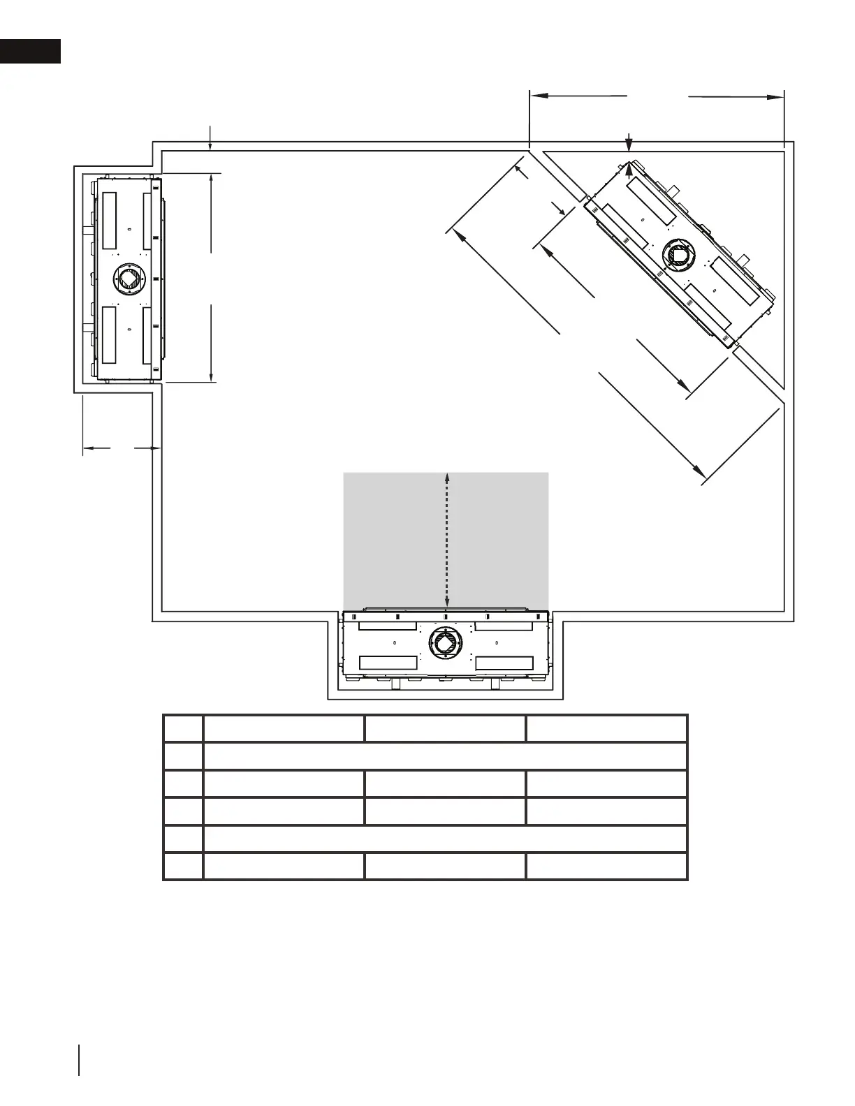
rough framing - before appliance installation
D
o not
p
ut objects in
f
ront o
f
the
a
pp
liance
(
minimum distance of 4 feet
)
TLV50 TLV62 TLV74
E
20 1/8” (51.1cm)
F
65 13/16” (167.2cm) 77 13/16” (197.6cm) 89 13/16” (228.1cm)
G
72 1/4” (183.5cm) 80 11/16” (205cm) 89 1/4” (226.6cm )
H
18 3/16” (46.2cm)
I
102 3/16” (259.5cm) 114 1/8” (289.9cm) 126 1/8” (320.4cm)
4.1 minimum framing dimensions
F
G
F
H
I
E
1” (2.54cm) min.
6” (15.2cm) min.
minimum framing
Horizontal vent sections: A minimum clearance of 3” (76mm) on the top outside of the enclosure and 2”
(51mm) on the sides and bottom outside of the enclosure all around the vent pipe on all horizontal runs to com-
bustibles is required. Horizontal vent sections within enclosures require a minimum clearance of 6”(152mm) at the
top of the vent pipe.
Vertical vent sections: A minimum of 1” (25mm) all around the vent pipe on all vertical runs to combustibles is
required except for clearances in appliances enclosures. Vertical vent sections within enclosures require a mini-
mum clearance of 1” (25mm) around the vent pipe.

Table of Contents

Related product manuals