EasyManua.ls Logo

Oakton CON 11 - Display and Keypad Functions; Display Layout and Indicators

Oakton CON 11
80 pages
Print Icon
To Next Page IconTo Next Page
To Next Page IconTo Next Page
To Previous Page IconTo Previous Page
To Previous Page IconTo Previous Page
Loading...
Instruction Manual CON 11/110
2
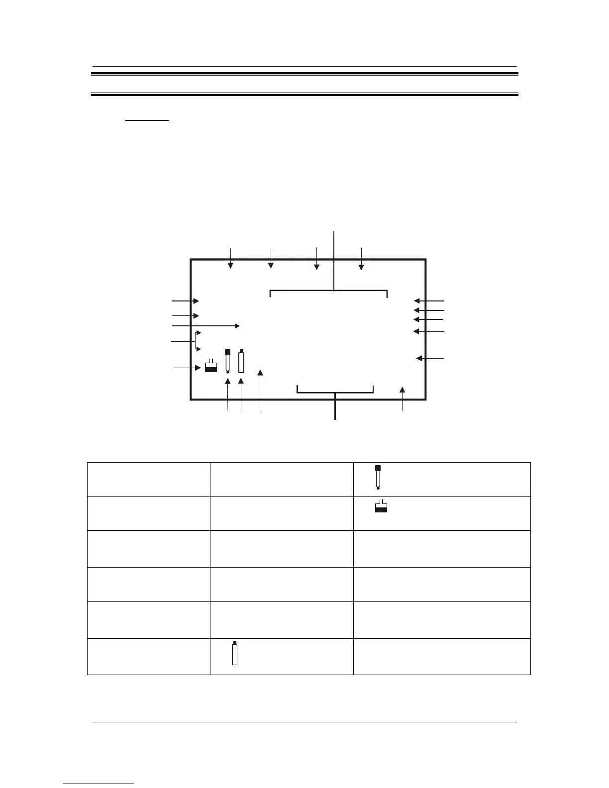
2 DISPLAY AND KEYPAD FUNCTIONS
2.1 Display
The LCD has a primary and secondary display.
The primary display shows the measured Conductivity/TDS values.
The secondary display shows the measured temperature.
The display also shows error messages, keypad functions and program functions.
SETUP MEAS
CAL MEM
Primary Display
Secondary Display
ERR
ATC
°C °F
READY
HOLD
ON
OFF
1.8.8.8
1.8.8.8
1
2
3
4
5
6
7
8
9
101113 12
14
15
16
17
18
mS
ppt
ppm
µ
S
K =
Figure 1: Active LCD display
1. SETUP - Setup mode
indicator
7. ppt - Parts per thousand
indicator
13.
- Electrode indicator
2. MEAS - Measurement
mode indicator
8. ppm - Parts per million
indicator
14.
- Calibration solution indicator
3. CAL - Calibration mode
indicator
9. °C°F - Temperature indicator 15. ON – READY/Auto HOLD set up
enable indicator.
OFF – READY set up disable indicator
4. MEM - Memory recall
mode indicator
10. ATC - Automatic
Temperature
Compensation indicator
16. K = - Cell Constant indicator.
5. ms - Mill siemens
indicator
11. ERR - Error indicator 17. HOLD – Hold indicator
6. µs - Micro siemens
indicator
12.
- Low battery indicator
18. READY – Ready indicator

Table of Contents

Related product manuals