EasyManua.ls Logo

OEM PF/500 - Wiring Diagram

Default Icon
Print Icon
To Next Page IconTo Next Page
To Next Page IconTo Next Page
To Previous Page IconTo Previous Page
To Previous Page IconTo Previous Page
Loading...
PIZZAFORM
Wiring diagram
GB - 25
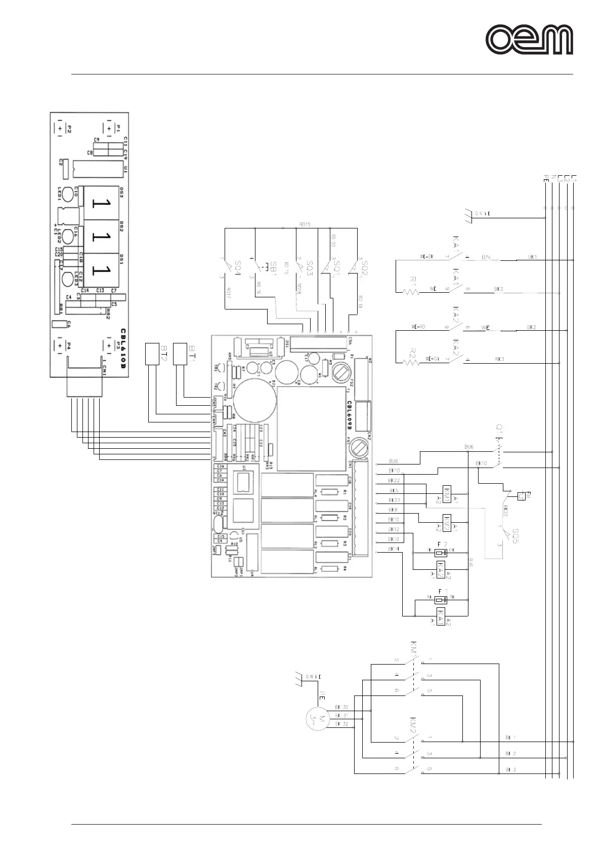
WIRING DIAGRAM
ELECTRIC PANEL CODES
Q1: Main switch
KM1: Up contactor
KM2: Down contactor
KM3: Power relay R1
KM4: Power relay R2
R1: Lower plate resistances
R2: Upper plate resistances
M: Electric motor
SB1/SB2: Run buttons
SQ 1: Phase inversion stopping microswitch
SQ 2: Lower microswitch
SQ 3: Upper microswitch
SQ 4/5: Hand protection microswitch

Table of Contents

Related product manuals