EasyManua.ls Logo

Omron E5*C Series - Page 73

Omron E5*C Series
440 pages
Print Icon
To Next Page IconTo Next Page
To Next Page IconTo Next Page
To Previous Page IconTo Previous Page
To Previous Page IconTo Previous Page
Loading...
2 - 35
2 Preparations
E5@C Digital Temperature Controllers User’s Manual (H174)
2-2 Using the Terminals
2
2-2-3 E5CC-B Terminal Block Wiring Example
Model Numbers
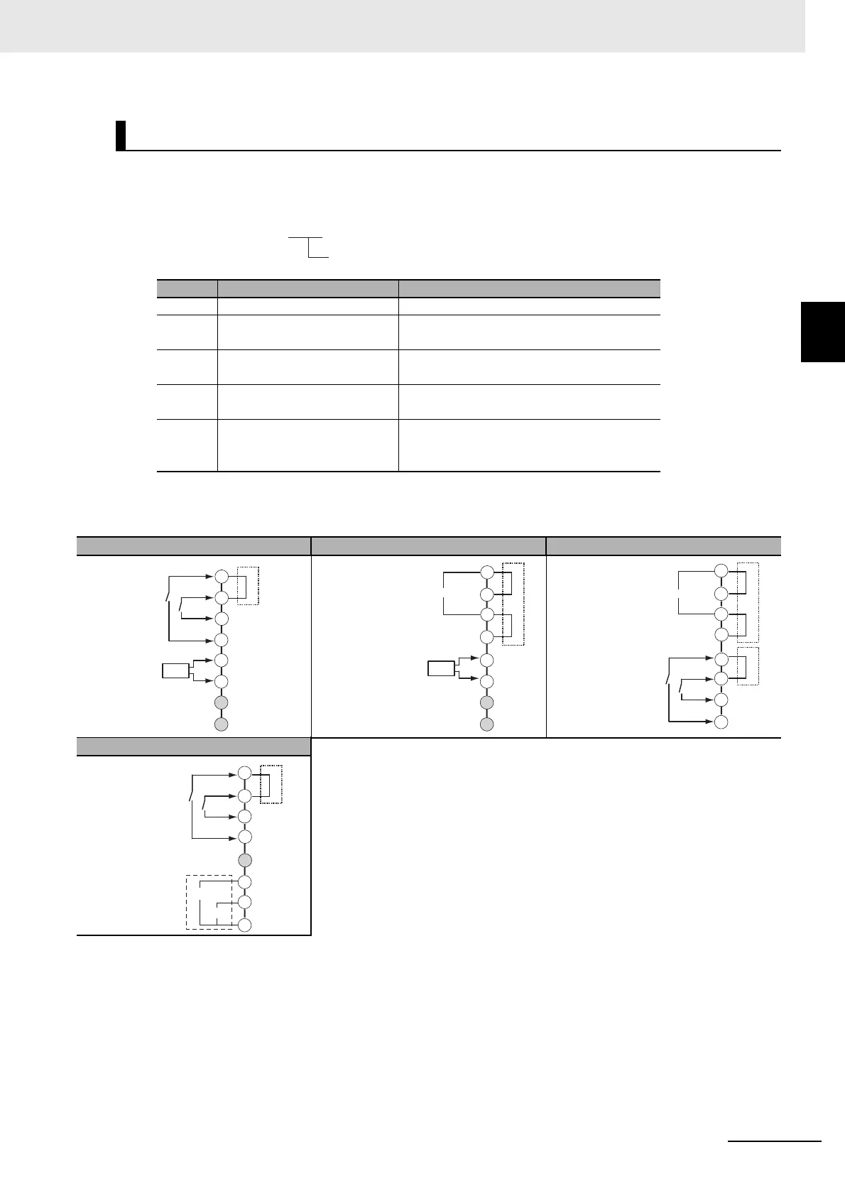
The options specification of the E5CC-B is given in the following location in the model number.
Terminal Details
Do not connect anything to the terminals that are shaded gray.
* Common terminals are indicated with asterisks (*).
You can use communications common terminals for crossover wiring.
Note: Use non-voltage inputs for the event inputs.
The polarity for a non-contact input is indicated by “(-).”
Options
Code Specification Remarks
000 None
001 Event inputs 1 and 2, and
CT1
002 Communications (RS-485)
and CT1
004 Communications (RS-485),
and event inputs 3 and 4
006 Event inputs 1 and 2, and
transfer output
Transfer output:
Current: 4 to 20 mA DC
Voltage: 1 to 5 VDC
001 002 004
006
E5CC-@@ @ @ B M-@@@
Options
17
EV1
EV2
CT1
Event
inputs
CT
(−)
(−)
*
18
19
21
22
23
24
20
CT1
CT
*
*
B(+)
A()
RS-485
Communications
17
18
19
21
22
23
24
20
*
*
*
B(+)
A()
RS-485
Communications
EV3
EV4
Event inputs
(−)
(−)
17
18
19
20
21
22
23
24
*
+
+
I
V
EV1
EV2
(−)
(−)
Transfer output
Event inputs
17
18
19
20
21
22
23
24

Table of Contents

Other manuals for Omron E5*C Series

Related product manuals