EasyManua.ls Logo

Panasonic VB-9411ADSUK - Connection of the Ac Mains Lead

Panasonic VB-9411ADSUK
158 pages
Print Icon
To Next Page IconTo Next Page
To Next Page IconTo Next Page
To Previous Page IconTo Previous Page
To Previous Page IconTo Previous Page
Loading...
INSTALLATION OF CCU
I-8
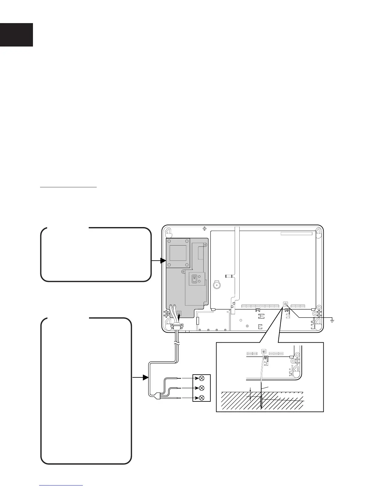
CCU
FG
FG1
Under ground
Grounding wire
Earth Rod
More than 50 cm
CCU
FG1
Blue
Brown
Green-and-Yellow
N
L
E
Fuse spur
outlet
CONNECTION OF THE AC MAINS LEAD
Use BS1363 approved AC plug.
For pluggable equipment, that the socket-outlet shall be installed near the equipment and shall be
easily accessible.
If a device other than a 13Amp plug top is used as a disconnection device it must meet the require-
ment of all of cls. 2.6 of EN60950 / 1992 / A21993.
The wires in this mains lead are coloured in accordance with the following code:
Green-and-yellow ................................... Earth (E)
Blue......................................................... Neutral (N)
Brown ..................................................... Live (L)
As the colours of the wires in the mains lead of this equipment may not correspond with
the coloured markings identifying the terminals in your connector proceed as follows:
The wire which is coloured green-and-yellow must be connected to the terminal which is
marked by the letter E or by the safety earth symbol or coloured green or green-and-yellow. The
wire which is coloured blue must be connected to the terminal which is marked with the letter N or
coloured black. The wire which is coloured brown must be connected to the terminal which is
marked with the letter L or coloured red. This equipment must be earthed when it is connected to
an AC mains.
Protective Earth
A separate protective earth wire may be connected to the system to protect the network and the
CCU from the possible hazardous voltage. If so required, use the screw terminal FG1 to connect
the earth wire.
WARNING
Be careful when you operate
the Power Supply Unit. You
may receive an electric shock
or dangerously high
temperatues.
WARNING
AC power line must be
dedicated. If you
cannot dedicate for
the CCU, connect a
regulator. If voltage
drops are too big (less
than 170V), connect
back-up battery.
Do not bundle AC
power line and inter-
nal lines or exchange
lines together outside
the CCU. Distance of
50cm is required
between them to
assure proper func-
tioning.

Table of Contents