EasyManua.ls Logo

Philips 42PF9731D - Page 131

Philips 42PF9731D
201 pages
Print Icon
To Next Page IconTo Next Page
To Next Page IconTo Next Page
To Previous Page IconTo Previous Page
To Previous Page IconTo Previous Page
Loading...
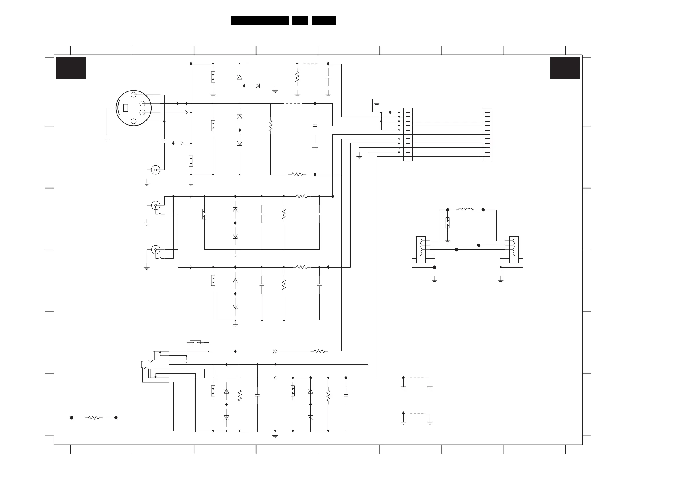
Circuit Diagrams and PWB Layouts
131BJ2.4U/BJ2.5U LA 7.
Side I/O Panel (Entry)
HEADPH-L
R-FRONT-IN
FRONT-DETECT
HEADPHONE
I109 E4
I110 F5
I111 A5
I112 A2
I113 A2
I114 C3
I115 D3
I116 E3
I117 E3
I118 E4
I119 F6
I120 E6
I121 C3
I122 D3
I123 F3
I124 F4
HEADPH-R
L-FRONT-IN
C-FRONT-IN
Y-CVBS-FRONT-IN
I101 B5
I102 A6
I103 C5
I104 A2
I105 B2
I106 A3
I107 D5
I108 B3
SVHS IN
Y/CVBS
C
CVBS
6909 F3
6910 F4
6911 F4
9900 A4
9901 A4
9903 F6
9904 F6
F100 F1
F101 F1
F102 C7
F103 C7
F104 C7
F105 D7
F106 D6
I100 A4
1M36 A7
2901 A5
2902 A4
2903 C4
2904 D4
2905 F3
2906 F5
2907 C4
2908 D4
3902 A4
3904 A4
3905 B4
3906 C4
3907 C4
3908 D4
3909 D4
3910 E5
3911 F3
3912 F5
3999 F1
5001 C7
6900 A3
6901 A4
6902 A3
6903 B3
6904 C3
6905 C3
6906 D3
6907 D3
6908 F3
78
1234567
SSB
TO
8
A
B
C
(YELLOW)
(RED)
RIGHT
LEFT
AUDIO LEFT
AUDIO RIGHT
1H01 C8
1004 C3
1005 C6
1006 A3
1007 A3
1008 E3
1009 F4
1010 E2
1011 C7
1012 B2
USB
CONNECTOR
123456
(WHITE)
HP-DETECT
D
E
F
A
B
C
D
E
F
0936 A6
1000 F3
1001 B1
1002-1 B2
1002-2 C2
1002-3 C2
1003 D3
680p
2908 2907
680p
6905
PDZ6.8-B
6904
2
3
4
5
6
7
8
9
PDZ6.8-B
0936
B11B-EH-A
1
10
11
I120
F101F100
1K0
3999
2K2
3905
5
1
3
4
2
PDZ6.8-B
YKF51-5564
1001
HP-GND
6902
I108
PDZ6.8-B
6903
1009
1000
I104
1007
I105
33n
2906
100p
2904
33K
3909
3K9
3910
10K
3911
33n
2905
F103
6909
PDZ6.8-B
A_GND
33K
3907
220R
5001
I102
I103
I101
PDZ6.8-B
6908
1008
I121
1H01
1
2
3
4
56
GND_U
3
4
56
292303-4
1005
292303-4
1
2
1002-2
6
45
A_GND
RES
220n
2902
9901
75R
3904
I115
I116
I114
6911
6910
PDZ6.8-B
PDZ6.8-B
F102
I112
I113
I111
10
11
2
3
4
5
6
7
8
9
1M36
B11B-PH-K
1
A_GND
HP-GND
9903
GND_U
9904
9900
1003
A_GND
F104
A_GND
2
3
4
5
7
8
YKB21-5101A
1010
1
1K0
3908
I124
HP-GND
I119
1012
1004
F105
I106
F106
I110
I107
I109
10K
3912
1006
1
2
1002-3
9
78
1002-1
GND_U
100p
2903
1011
I100
I118
1K0
3906
I117
6906
PDZ6.8-B
PDZ6.8-B
6907
I122
75R
3902
HP-GND
6901
PDZ6.8-B
PDZ6.8-B
6900
220n
2901
I123
RES
SIDE I/O
D D
3104 313 6141.2
G_15960_147.eps
040406

Table of Contents

Other manuals for Philips 42PF9731D

Related product manuals