EasyManua.ls Logo

Philips 42PF9731D - Multimedia Browser (Continued); Multimedia Browser Menu Navigation; Navigating Multimedia Content Files

Philips 42PF9731D
201 pages
Print Icon
To Next Page IconTo Next Page
To Next Page IconTo Next Page
To Previous Page IconTo Previous Page
To Previous Page IconTo Previous Page
Loading...
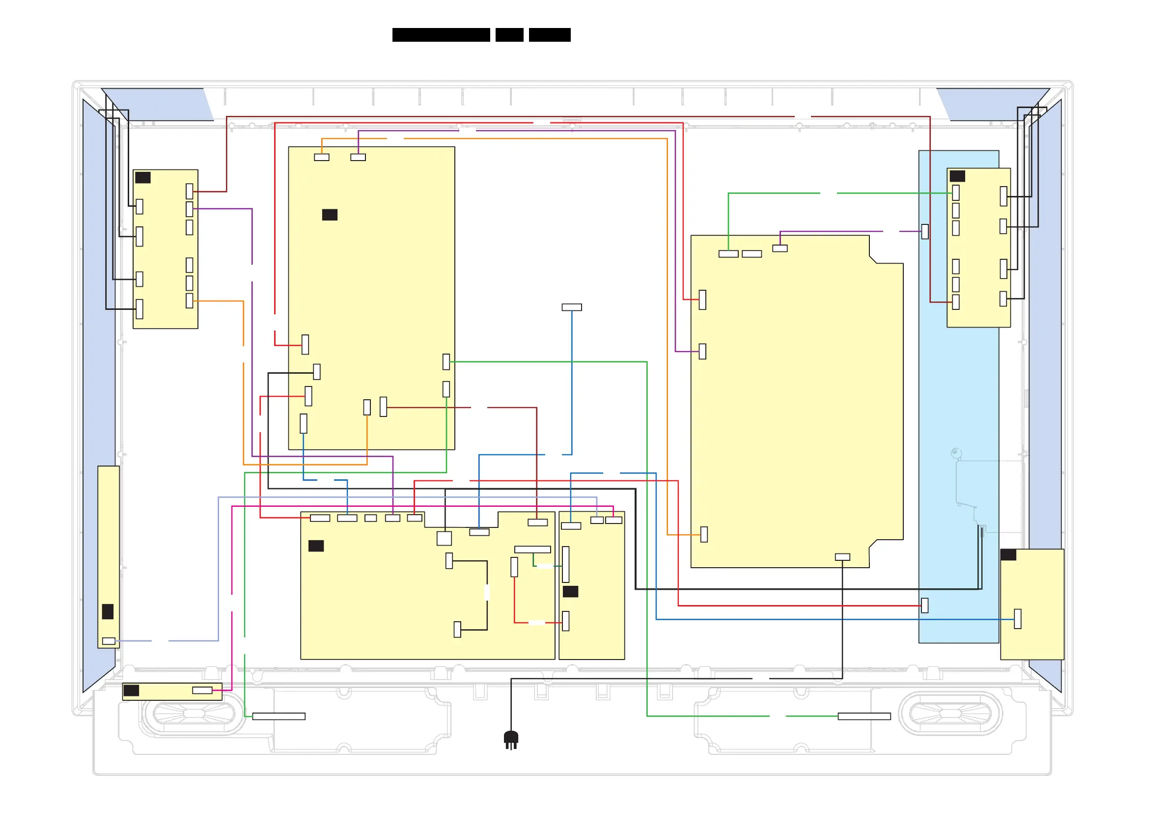
Block Diagrams, Test Point Overviews, and Waveforms
41BJ2.4U/BJ2.5U LA 6.
Wiring Diagram 42” Top B
G_15910_026.eps
230606
1M08
6P
1M09
4P
1M10
6P
1M16
3P
1M59
5P
1M39
3P
1M39
3P
1M59
4P5
1M49
4P
1M10
6P
1M09
4P
1M08
6P
1M36
11P
1H01
4P
USB
1G50
31P
1M01
3P
1M21
6P
SPEAKER RIGHT SPEAKER LEFT
WIRING 42”
AMBI
LIGHT
AL
AMBI
LIGHT
AL
CONTROL BOARD
E
LED PANEL
J
SIDE I/O
D
SMALL SIGNAL BOARD
B
EXTERNALS
BE
1M21
6P
1M01
3P
1M36
11P
1M52
9P
1E40
40P
1E62
20P
1E62
20P
8539
8262
8240
1E40
40P
1M11
11P
1M15
3P
1M13
11P
1M16
3P
1M11
11P
1M15
3P
1M13
11P
AMBI LIGHT UNIT RIGHT
AMBI LIGHT UNIT LEFT
1M03
10P
1P10
10P
1M46
11P
LVDS
30P
1M46
11P
1M03
10P
1M59
5P
1M63
2P
1M64
4P
1N62
4P
8264
1M49
4P
TOP AMBI LIGHT TOP AMBI LIGHT
MEMORY
CARD READER
Only For
USB 2.0
1P02
2P3
1P22
2P3
PLATFORM SUPPLY
AP
1735
2P3
1736
2P3
1M63
2P
1M10
6P
1M52
9P
1P02
2P3
1P22
2P3
1P06
2P3
1M08
6P
1M10
6P
DISPLAY SUPPLY
1308
2P3
1P10
10P
INVERTER
8150
8736
2P3
8101
8121
8735
8508
8422
8402
8136
8408
8103
81468146
8152
8310
8410
8508
8510
8559
1D42
5P
5P
8142

Table of Contents

Other manuals for Philips 42PF9731D

Related product manuals