EasyManua.ls Logo

Philips JL2.1E - LCD Power Supply

Philips JL2.1E
254 pages
Print Icon
To Next Page IconTo Next Page
To Next Page IconTo Next Page
To Previous Page IconTo Previous Page
To Previous Page IconTo Previous Page
Loading...
Circuit Descriptions, Abbreviation List, and IC Data Sheets
EN 203JL2.1E AA 9.
9.2 LCD Power Supply
9.2.1 General
•All displays:
The sound supplies are +/- 18V.
A loudspeaker DC protection is added (via TS7030 on
the Main Supply).
A POK (Power OK) is generated when the 12V from
the Aux supply is stabilised.
The STANDBY supply is integrated on the Audio
Amplifier panel.
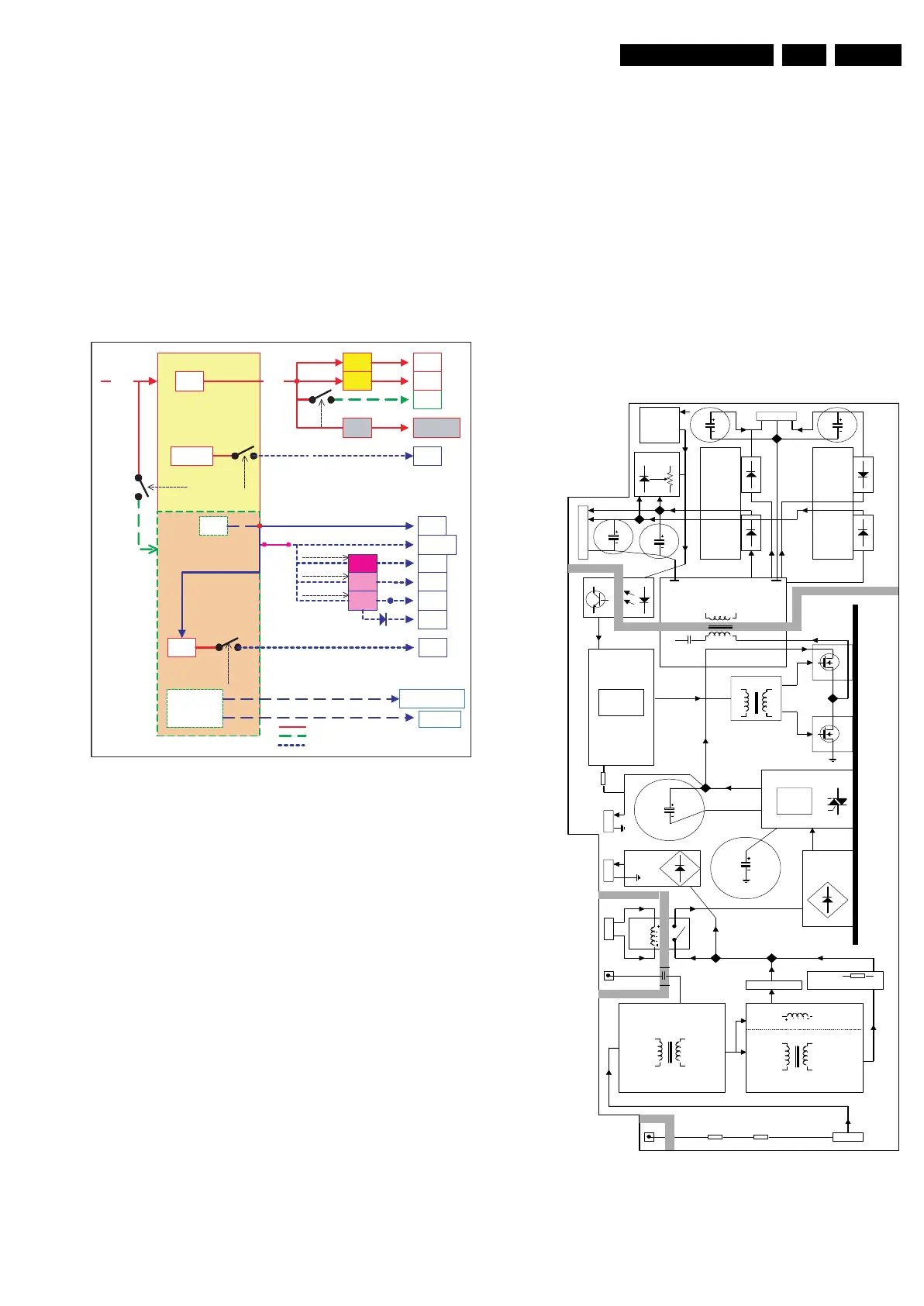
9.2.2 Block Diagram
Figure 9-5 Block diagram power supply
Main Supply
Diversity
Mains input voltage:
240 V
AC
.
Mains filter diversity:
2 x mains filter + inrush current resistor.
Screen size diversity:
One module for 32" and 37” sets.
Two (almost identical) modules on one PWB for 42"
sets.
Specifications
12 V / 3 A on connector 1304 (for AmbiLight and to
generate +8V6).
24 V / 5 A for LCD backlight on connector 1304.
+18V, -18V sound on connector 1M02.
+8V6 (derived from +12V from the Main Supply, switched
"off" in stand-by).
Output voltage: over-voltage protection of resonant supply.
Output current protection of resonant supply.
Current protection at some safety fault conditions.
Stand-by Mode
The resonant supply is switched "off" via a relay (1350 or
1450) that is driven by the Stand-by Supply (via connector
1305).
Outputs
130-400 V
DC
(full range) to Stand-by Supply (connector
1306).
Mains over-voltage and safety protection for Stand-by
Supply (connector 1307).
Inputs
Relay drive voltage (for STANDBY/ON mode) on
connector 1305.
DC_PROT signal to protect loudspeakers when there is a
DC voltage across the loudspeakers (1M02).
Figure 9-6 Functional diagram Main Supply (one module)
F_15710_184.eps
260905
Standby Supply
Main
Supply
+5V2
+5V2S
1V2
3V3
3V3Stb
1V2Stb
Standby
+8V6
STANDBY
+8V6
+12VS
+12VS
+1V2
+1V2
+12VSW
+2V8
+2V8
+3V3
+3V3
+2V5
Enable-3V3
Enable-2V8
En ab le - 1V 2
+12V or +24V
and Vsound
Display Inverter
+12V/24V
+VSound
+5V2
+33V tuner
STANDBY
+33V
+2V5D (DDR)
+2V5
Mains
STANDBY
available from standby onw ards
available from semi-standby onw ards
available from on onwards
1
+400V
AVS10
Mains filter
Mains filter
Mains Harmonic
Inruch
Bridge
Rectifier
US / APmulti
US / APmultiEUR / CHINA
EUR / CHINA
Relais
1308
1305
Driver Trafo
US / APmulti
Heatsink
Doubler
Control supply
MC34067P
Resonant Trafo
Heatsink Heatsink
Opto
12V
24V
-18V18V 1M02
Reference
COLD
HOT
+12V
1306
1307
Bridge
Rectifier
1304
+12V
+24V
HOT
HOT
COLD
COLD
GND_AUD
Audio Supply
Display supply
Mains input
Stand By supply
Supply
Invertors
(RES)
DC prot
25V_HOT
(Startup)
Relais drive
GND_SND
+400V
+400V
E_14620_025.eps
100504

Table of Contents

Related product manuals