EasyManua.ls Logo

Planmeca PlanMill 50 S - Installation; Extractor Overview; Installing Extractor

Planmeca PlanMill 50 S
132 pages
Print Icon
To Next Page IconTo Next Page
To Next Page IconTo Next Page
To Previous Page IconTo Previous Page
To Previous Page IconTo Previous Page
Loading...
A.2 Installation
A.2.1 Extractor overview
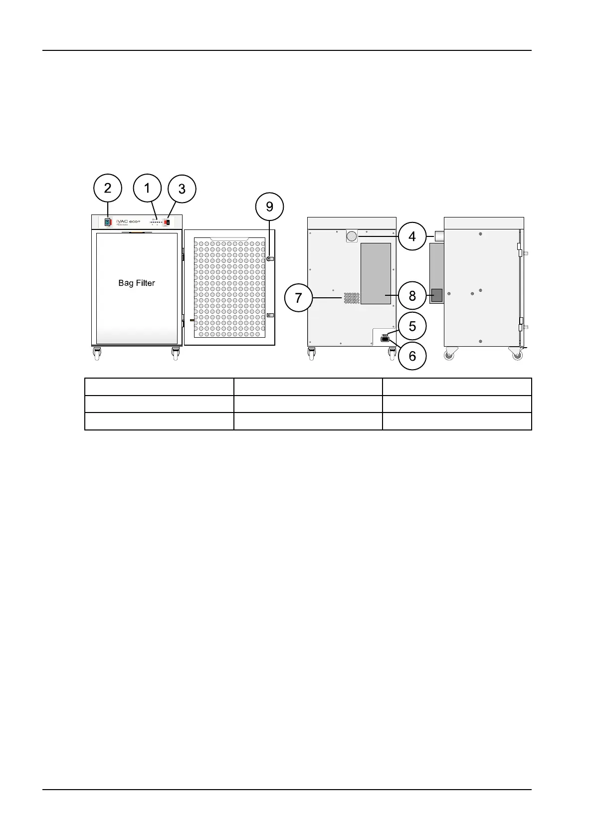
This unit provides extraction and filtration of the fume generated by marking,
milling, cutting, etching or engraving. The units are of robust design and
feature ease of use with minimal maintenance. The main components are
shown below.
1. Unit/filter condition display 2. On/off switch 3. Motor function switch
4. Hose inlet connection 50mm 5. Signal / interface connection 6. Power inlet
7. Cooling air inlet 8. Exhaust/cooling air outlet 9. Filter door catch
A.2.2 Installing extractor
CAUTION
If this equipment is used in a manner not specified by the manufacturer, the
protec- tion provided by the equipment may be impaired.
Read all instructions in this manual before using this extractor.
1. Move the unit to the location where it is going to be installed and remove
the unit from its packaging. The unit should be installed in a well
ventilated room.
CAUTION
Due to the weight involved the extractor unit should only be lifted using
suitable lift- ing equipment and with regard to appropriate safety
precautions. (See Appendix for product weight details).
2. Ensure that a 0.5m space is available around any louvered areas of the
unit to ensure adequate air flow. Lock the two braked castors, if fitted.
CAUTION
Do not block or cover any louvers or cooling holes on the unit as this
severely restricts air flow and may cause damage to the unit.
CAUTION
Under no circumstances should the exhaust outlet/s be covered as this
will restrict the airflow and cause overheating.
Appendix A: Suction unit (optional)
118 Planmeca PlanMill 50 S User's manual

Table of Contents

Related product manuals