EasyManua.ls Logo

Polysoude PS 406-2 - Fig. 6.20 - Sequencer Card

Default Icon
92 pages
Print Icon
To Next Page IconTo Next Page
To Next Page IconTo Next Page
To Previous Page IconTo Previous Page
To Previous Page IconTo Previous Page
Loading...
PN-0908073 Rev. 11 71-92
PS 164-2
THE ART OF WELDING
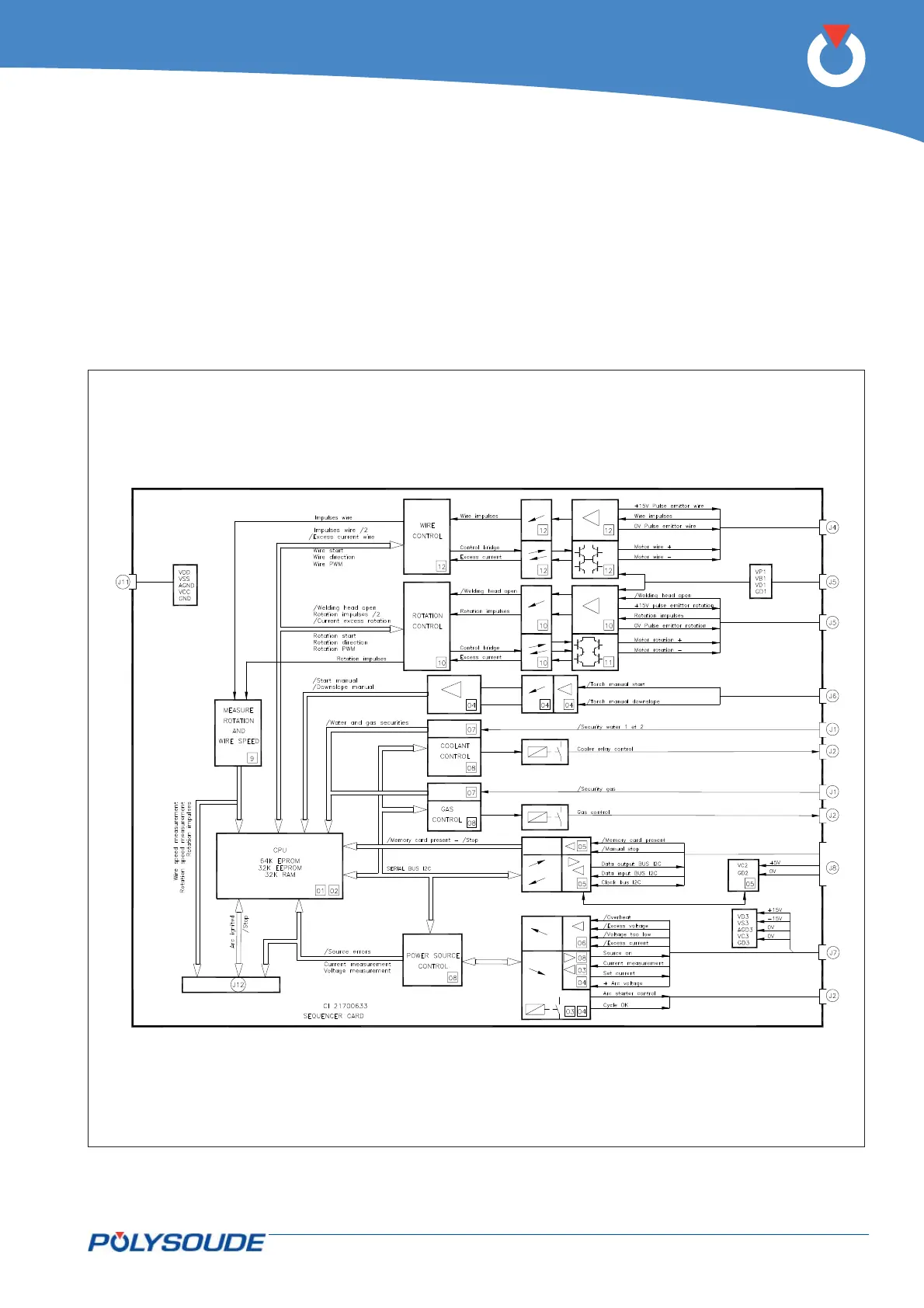
The sequencer card (21700633)
The sequencer card includes several block func-
tions:
Central program unit (CPU) composed principally
of the microchip and the memory.
Power source control.
Rotation motor control, based on the principle of
PWM (Pulse Width Modulation).
Wire motor control, identical to the control of the
rotation motor.
Fig. 6.20 - Sequencer card
Shielding gas control.
• Coolant control.
Interface with the manual torch
Interface with the I²C bus for the external links
and especially with the synoptic card.
• Power supplies.

Table of Contents

Related product manuals