EasyManua.ls Logo

Regency P36E-NG10 - Direct Vent System (Flex) Installation Procedures

Regency P36E-NG10
72 pages
Print Icon
To Next Page IconTo Next Page
To Next Page IconTo Next Page
To Previous Page IconTo Previous Page
To Previous Page IconTo Previous Page
Loading...
32 | P36E-10 Zero Clearance Direct Vent Gas Fireplace
|
32
installation
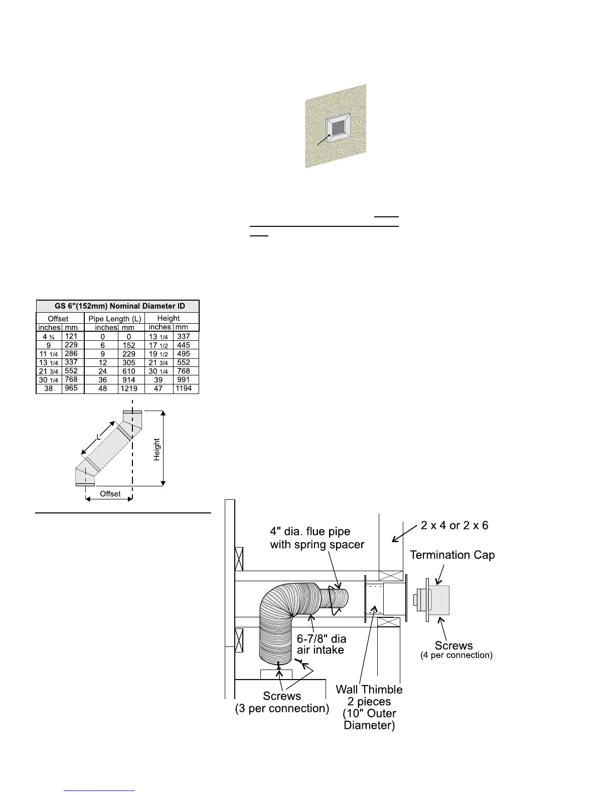
4) Separate the 2 halves of the wall thimble and
securely fasten the one with the tabs to the
outside wall making sure that the tabs are on
top and bottom. Fasten the other thimble half
to the inside wall. The thimble halves slip inside
each other and can be adjusted for 2 x 4 or 2 x
6 walls. The liners must slip over the collars
a minimum of 1-3/8".
5) Slip the assembled liner and termination as-
sembly through the thimble making sure the
termination cap faces up (there are markings
on the cap that show which way is up). This will
position the termination cap with proper down
slope for draining water. Fasten the cap to the
outer wall with the 4 supplied screws.
6) Pull the centre 4"(100mm) liner and outer
6-7/8"(175mm) liner out enough to slip over the
flue collars of the fireplace. (You may wish to
cut the liner shorter to make it more workable.)
Do not bend liner more than 90
o
.
7) Apply Mill Pac over the fireplace inner collar
and slip the 4"(100mm) liner down over it and
attach with 3 supplied screws.
8) Do the same with the 6-7/8"(175mm) liner.
9) Apply a bead of silicone between the thimble
and termination and around the outer edge of
the terminal at the wall in order to keep the
water out.
IMPORTANT: Do not locate termination hood
where excessive snow or ice buildup may
occur. Be sure to check vent termination
area after snow falls, and clear to prevent
accidental blockage of venting system. When
using snow blowers, make sure snow is not
directed towards vent termination area.
Note: To make
the installation
more aesthetically
pleasing, we
recommend
framing out a
square to mount
the terminal to.
Outside Wall
Mur extérieur
Furring
Strips
Fourrures en bois
Furstrp.eps
see also c34020a.eps
furstrpf.eps
french
O󰀨set Chart
DIRECT VENT SYSTEM (FLEX)
INSTALLATION PROCEDURES
1) Locate the unit in the framing, rough in the gas
(preferably on the right side of the unit) and the
electrical (Junction block is on the left side) on
the left. Locate the centerline of the termination
and mark wall accordingly. Cut a 10"(254mm)
hole in the wall (inside dimension).
Note: A 2" clearance at the top and 1 1/2" clear-
ance around the liner must be maintained
except that only a 1" (25mm) clearance
is needed at the termination end. We
recommend framing a 10"(254mm) x
10"(254mm) (inside dimensions) hole
to give structural rigidity for mounting
the termination.
Note: If installing termination on a siding
covered wall, furring strips must be
used to ensure that the termination is
not recessed into the siding.
2) Level the fireplace and fasten it to the framing
using nails or screws through the nailing strips.
3) Assemble the vent assembly by applying Mill Pac
to the 4"(100mm) inner collar of the termination
and slipping the 4"(100mm) liner over it at least
1-3/8" (35mm). Fasten with the 3 screws (drilling
pilot holes will make this easier). Apply Mill-Pac
to the 6-7/8"(175mm) flex pipe and slip it over the
6-7/8" outer collar of the vent terminal at least
1-3/8"(35mm) and fasten with the 3 screws.
NOTE:
Horizontal sections must be supported at
intervals not exceeding 3 feet (0.9 meter).
(Flame picture and performance will be
a󰀨ected by sags in the liner).
height requirements specified in Diagram 5 or
local codes.
Note that for steep roof pitches, the vertical height must
be increased. A poor draft, or down drafting can
result from high wind conditions near big trees or
adjoining roof lines, in these cases, increasing the
vent height may solve the problem.
7) Ensure vent is vertical and secure the base of
the flashing to the roof with roofing rails, slide
storm collar over the pipe section and seal with
a mastic.
8) Install the vertical termination cap by twist-
locking it.
Note: Any closets or storage spaces, which the
vent passes through must be enclosed.

Table of Contents

Related product manuals