EasyManua.ls Logo

Riello 809 T80 - Fijación del Quemador a la Caldera; Instalación; Longitud Tubo Llama; Placa de Caldera

Riello 809 T80
64 pages
Print Icon
To Next Page IconTo Next Page
To Next Page IconTo Next Page
To Previous Page IconTo Previous Page
To Previous Page IconTo Previous Page
Loading...
6
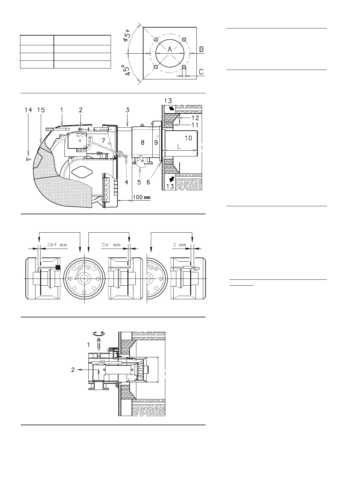
INSTALACIÓN
PLACA DE CALDERA (A)
Taladrar la placa de cierre de la cámara de
combustión tal como se indica en (A). Puede
marcarse la posición de los orificios roscados
utilizando la junta aislante que se suministra con
el quemador.
LONGITUD TUBO LLAMA (B)
La longitud del tubo de llama debe seleccio-
narse de acuerdo con las indicaciones del fabri-
cante de la caldera y, en cualquier caso, debe
ser mayor que el espesor de la puerta de la cal-
dera completa, con el material refractario
incluido. Las longitudes, L (mm), disponibles
son:
Tubo llama 10) RS 28 RS 38 RS 50
• corto 216 216 216
• largo 351 351 351
Para calderas con pasos de humos delanteros 13)
o con cámara de inversión de llama, colocar una
protección de material refractario 11) entre el
refractario de la caldera 12) y el tubo de llama 10).
Esta protección debe permitir el desplazamiento
del tubo de llama.
En calderas con frontal refrigerado por agua, no
es necesario el revestimiento refractario 11)-
12)(B), salvo que lo indique el fabricante de la
caldera.
FIJACIÓN DEL QUEMADOR A LA CALDERA
(B)
Antes de fijar el quemador a la caldera, verificar
(a través de la abertura del tubo de llama) si la
sonda y el electrodo de encendido están correc-
tamente posicionados como se muestra en la
figura (C).
Luego separar el cabezal de combustión del
resto del quemador, fig. (B):
- Desenroscar los tornillos 14) y extraer la
envolvente 15);
- Desenganchar la articulación 4) del sector
graduado 5);
- Desenroscar los tornillos 2) de las dos guías
3);
- Desenroscar los tornillos 1) y desplazar el
quemador por las guías 3) unos 100 mm;
- Desconectar los cables de la sonda y del elec-
trodo y a continuación extraer por completo el
quemador de las guías, después de haber
sacado el pasador de la guía 3).
Fijar la brida 9)(B) a la placa de la caldera, inter-
calando la junta 6)(B) que se suministra. Utilizar
los 4 tornillos que se suministran, después de
haber protegido la rosca con algún producto
antibloqueo.
El acoplamiento del quemador con la caldera
debe ser hermético.
Si en la verificación anterior, la posición de la
sonda o del electrodo no era correcta, desen-
roscar el tornillo 1)(D), extraer la parte interior
2)(D) del cabezal y proceder a su calibración.
No hacer girar la sonda, sino dejarla como se
indica en (C), ya que si se sitúa demasiado
cerca del electrodo de encendido podría dañar
el amplificador de la caja de control.
(A)
(B)
mm A B C
RS 28 160 224 M 8
RS 38 160 224 M 8
RS 50 160 224 M 8
(C)
(D)
SONDA ELECTRODO RS 28-38 ELECTRODO RS 50
D455
D499
D880
D501

Table of Contents

Related product manuals