EasyManua.ls Logo

Rockwell Automation Allen-Bradley Ultra3000 - Page 46

Rockwell Automation Allen-Bradley Ultra3000
80 pages
Print Icon
To Next Page IconTo Next Page
To Next Page IconTo Next Page
To Previous Page IconTo Previous Page
To Previous Page IconTo Previous Page
Loading...
48 Rockwell Automation Publication 2198-RM006A-EN-P - December 2020
Appendix A Connectors and Field Connections
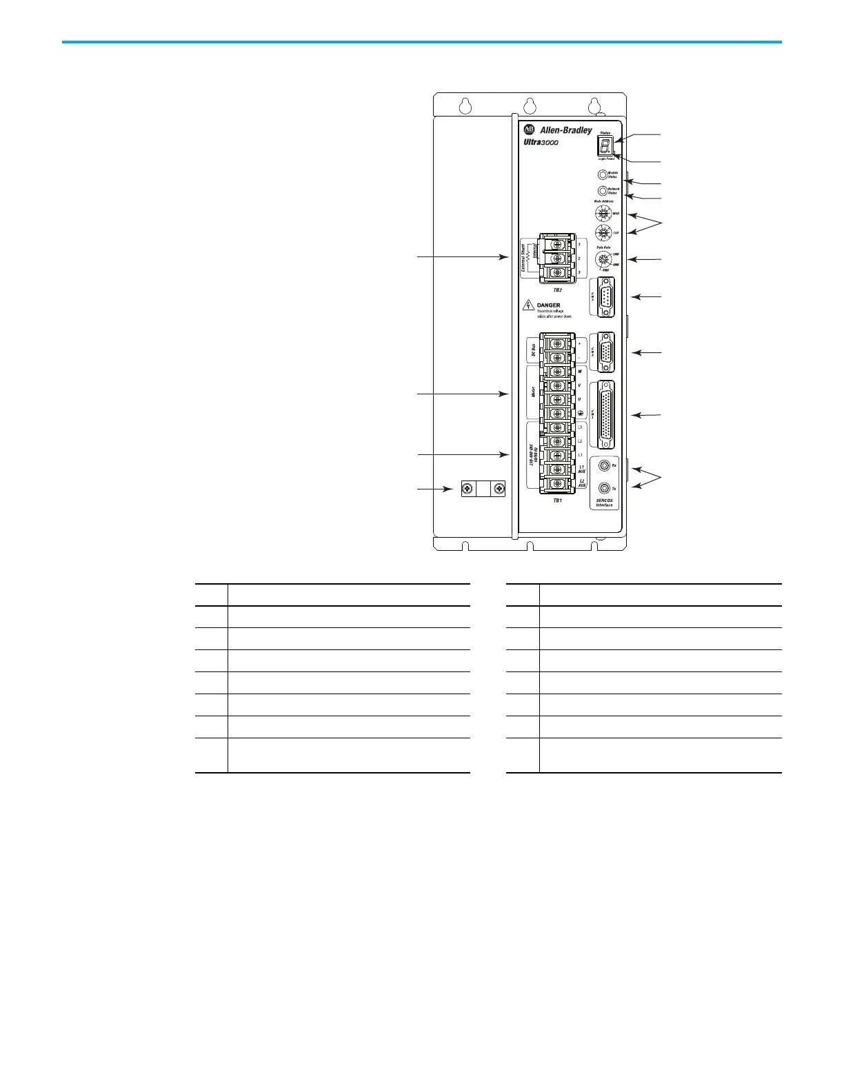
Figure 18 - Ultra3000 Servo Drive Front Panel Connections for Cat. No. 2098-DSD-HVxxx-SE
5
6
4
3
2
7
1
8
9
10
11
12
13
14
Item Description Item Description
1 Motor Power Cable Shield Clamp 8 Network Status Indicator
2 AC Input Power Connections 9 Node Address Switches
3 Motor Power Connections 10 Data Rate Switch
4 Passive Shunt Resistor Connections 11 CN3 9-pin Serial Port Connector
5 Seven Segment Status Indicator 12 CN2 15-pin Motor Feedback Connector
6 Logic Power Status Indicator 13 CN1 44-pin User I/O Connector
7 Module Status Indicator 14
Sercos Interface Receive (Rx) and Transmit (Tx)
Connectors

Table of Contents

Other manuals for Rockwell Automation Allen-Bradley Ultra3000

Related product manuals