EasyManua.ls Logo

Rotex GCU compact - Flue Gas System Kits

Rotex GCU compact
64 pages
Print Icon
To Next Page IconTo Next Page
To Next Page IconTo Next Page
To Previous Page IconTo Previous Page
To Previous Page IconTo Previous Page
Loading...
20
ROTEX GCU compact - 
4 x Set-up and installation
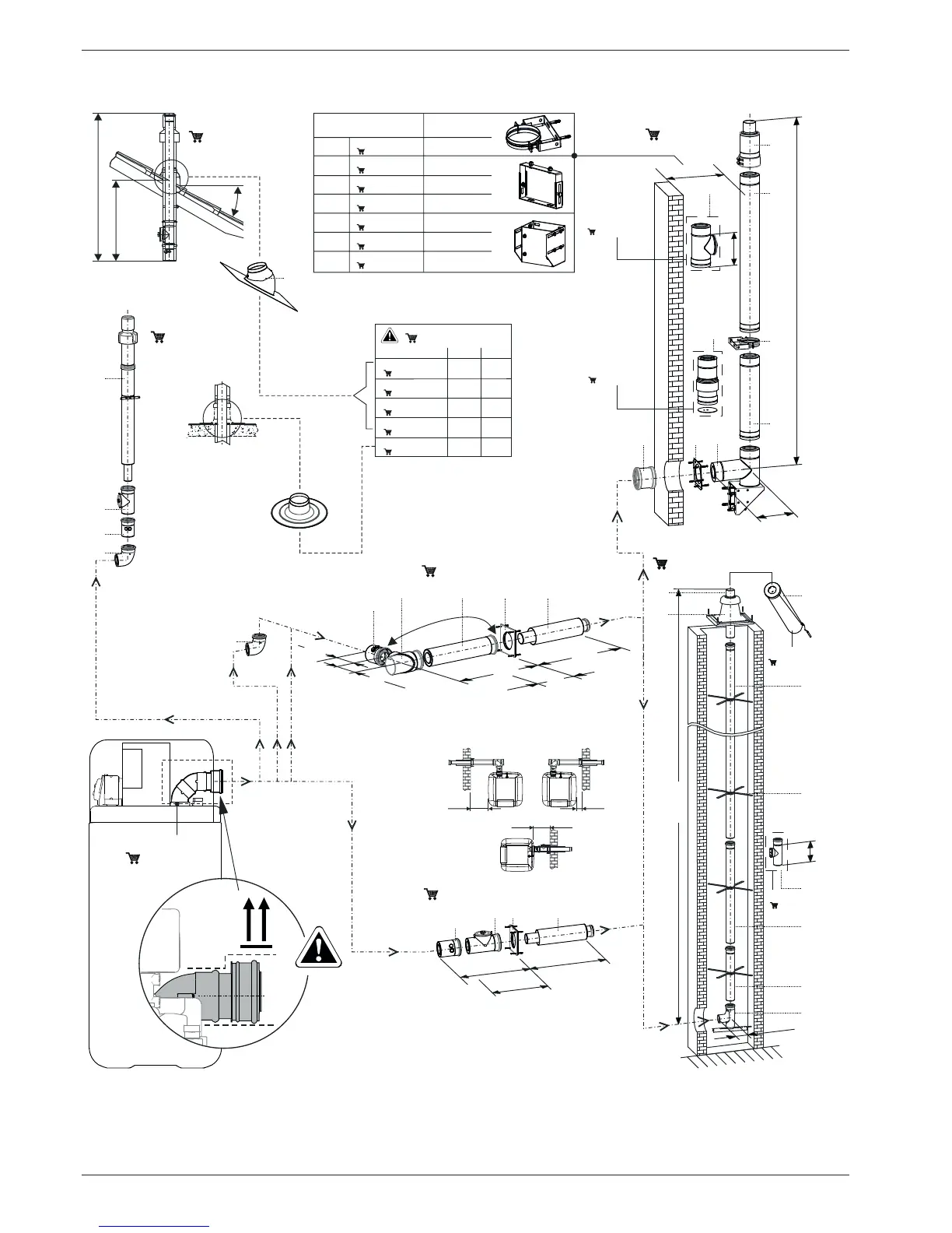
4.5.3 Flue gas system kits
Fig. 4-15 Flue system kits
* If needed
** See tab. 4-1
(L
) Flue gas connection left
(R) Flue gas connection right
(H) Flue gas connection rear













V+


3$

3$








V/
V5





3$




[

[




:$




:$
 ::+ PP
 
 ::+9 PP
 
 ::+9 PP
 
 ::+9 PP
 
 ::.9 PP
 
 ::.9 PP
 
 ::.9 PP
 

6(7/;;;
;;;
')'  
 
'6'6  
 
'6'6  
 
'6'6  
 
')'  
 
[[[
6(7+

6(7/

6(7/


(55(55
 
(06'(06'
 
6(7(6(7(

6(7*

(=5
 
:=5
 
V
/
55
V
V
+
6(7.

6(7*&8





Table of Contents