EasyManua.ls Logo

Rotex GCU compact - Electrical Connection Diagram

Rotex GCU compact
64 pages
Print Icon
To Next Page IconTo Next Page
To Next Page IconTo Next Page
To Previous Page IconTo Previous Page
To Previous Page IconTo Previous Page
Loading...
12 x Technical data
ROTEX GCU compact - 
61
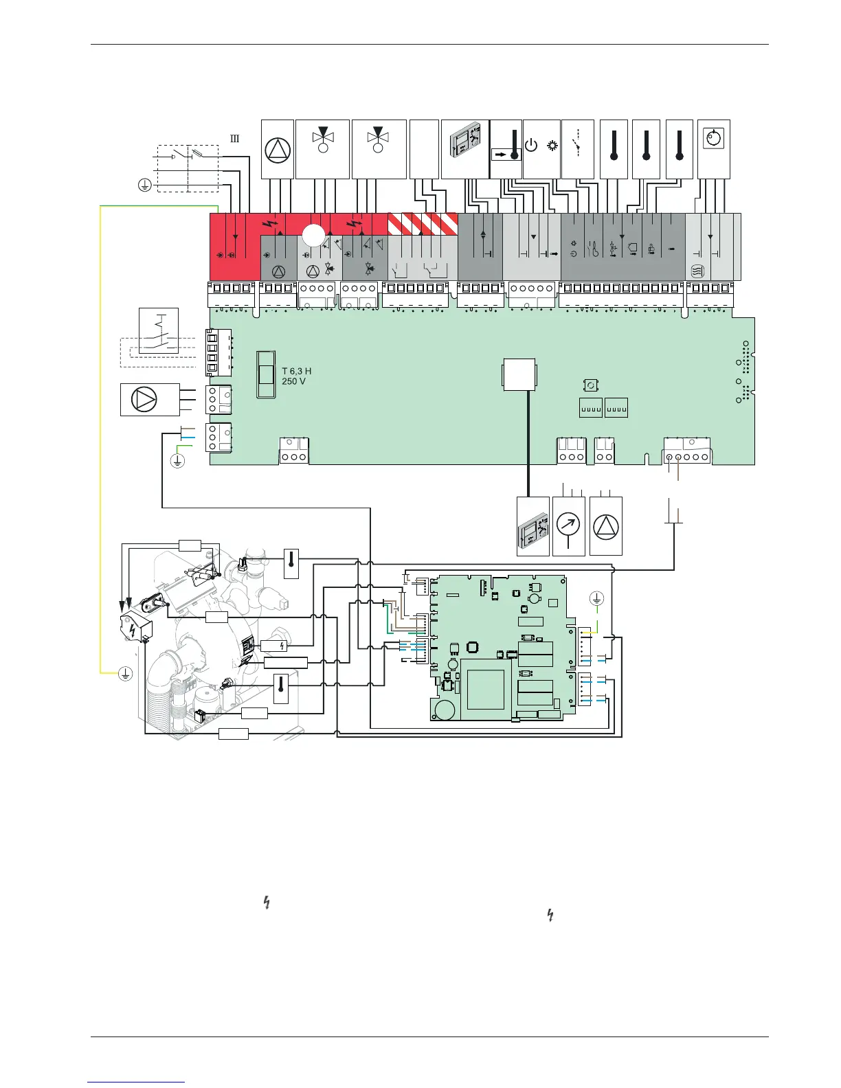
12.6 Electrical connection diagram
J1 3-pin circuit board connector with pump ca-
ble mains)
J2 4-pin circuit board connector with valve ca-
ble
J3 6
-pin circuit board connector (not occu-
pied)
J5 3-pin circuit board connector with pressure
sensor cable
J6 4-pin circuit board connector with clamped
mains cable and earthing slots
J7 2
-pin circuit board with PWM signal cable
for external heating circulation pump
J8 12-pin circuit board connector to connect
sensors and control lines
J9 5-pin circuit board connector (not occu-
pied)
J10 3-p
in circuit board connector with mains ca-
ble for automatic firing CM434
J11 5-pin circuit board connector with mains ca-
ble for automatic firing CM434
J12 4-pin circuit board connector:
GCU compact 3xx: Not assigned
GCU compact 5xx: Connection 3-way
change valve (
3UVB1)
J13 4-pin circuit board connector for connecting
additional regulating system components
(CAN-Bus)
J14 3
-pin circuit board connector for clamping a
circulation pump
J15 4-pin circuit board connector with switch
cable
J16 4
-pin circuit board connector for connecting
a room thermostat (digital demand contact)
Mains supply 230 V, 50 Hz
Fig. 12-5 Wiring diagram ROTEX GCU compact





























!"#$%
#&'(!
)*(+!'&+,(
-./(,)+0
/
&
/
1



222
3242
%
!1
%
!1
%

%


"!!!!%
#

))3!
))3!
#
"/
5%





















222
/
( &'6
( &'

/



#
/



#
1.77


8
8
$9
6
6
( &'


%
!-):;.-/!<<
%
!-):;.-/!<<
?


Table of Contents