EasyManua.ls Logo

Rotex GCU compact - Installation Versions

Rotex GCU compact
64 pages
Print Icon
To Next Page IconTo Next Page
To Next Page IconTo Next Page
To Previous Page IconTo Previous Page
To Previous Page IconTo Previous Page
Loading...
14
ROTEX GCU compact - 
4 x Set-up and installation
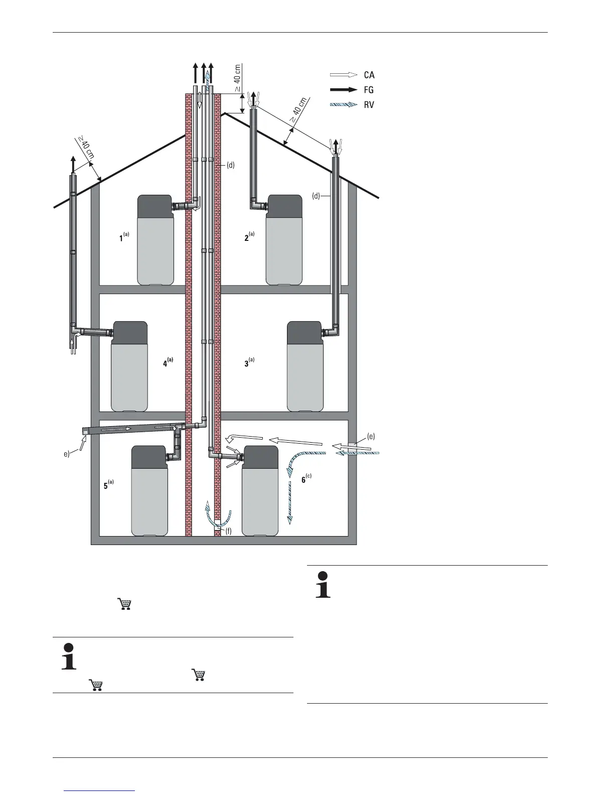
4.2 Installation versions
The ROTEX GCU compact are designed basically for operation
independent of the ambient air. They are fitted with a con-
centric flue gas /air supply pipe DN 60/100.
The SET GCU1 ( 15 50 79.17) kit can be used to flexibly ar-
range the flue gas /air supply pipe for the connection dire
ctions to
the rear or upwards and extended to DN 80/125.
1-6 Different set-ups (For a description, see
section 4.2.1 to 4.2.3)
CA Inlet air (combustion air)
FG Flue gas
RV Rear ventilation
a Set up variant for room-air independent
operation (flue gas/inle
t air concentric)
b Set up variant for limited room-air inde-
pendent operation
(flue gas/air inlet sepa-
rate)
c Set
up variant for room-air dependent op-
eratio
n
d Longitudinally ventilated shaft with fir
e re-
sistance duration of 90 min (in residential
buildings with low headroom 30
min).
Observe country-specific regulations for
fire-resistance periods!
e Ven
tilation opening (1x150 cm² or
2x
75 cm²)
f Rear ventilation opening (150 cm²)
Fig. 4-7
Installation variants for the GCU compact
In some cases, the resonance in the flue system can
amplify the noise at the mouth of the flue gas pipe. The
noise level can be effectively reduced with the applica
-
tion of a silencer (E8 MSD, 15 45 78 or E11 MSD,
15 45 79).
Using the ROTEX GCU compact in room-air inde-
pendent operation with a concentric flue gas/air supply
pipe is recommended by ROTEX. If possible, choose
this set-up!
In the event of limited room-air independent (separate
flue gas/air supply pipes with a single-walled con-
necting pipe) and in the event of room-air dependent
operation, the installa
tion room must have a ventilation
opening of at least 150 cm
2
into the outdoors.
This reduces the overall energy efficiency of the
building in the
framework of the European Guideline
2010/31/EU: EPBD.

Table of Contents