EasyManua.ls Logo

Samsung Electronics DVM Series - Page 107

Samsung Electronics DVM Series
228 pages
Print Icon
To Next Page IconTo Next Page
To Next Page IconTo Next Page
To Previous Page IconTo Previous Page
To Previous Page IconTo Previous Page
Loading...
ΙΙΙ
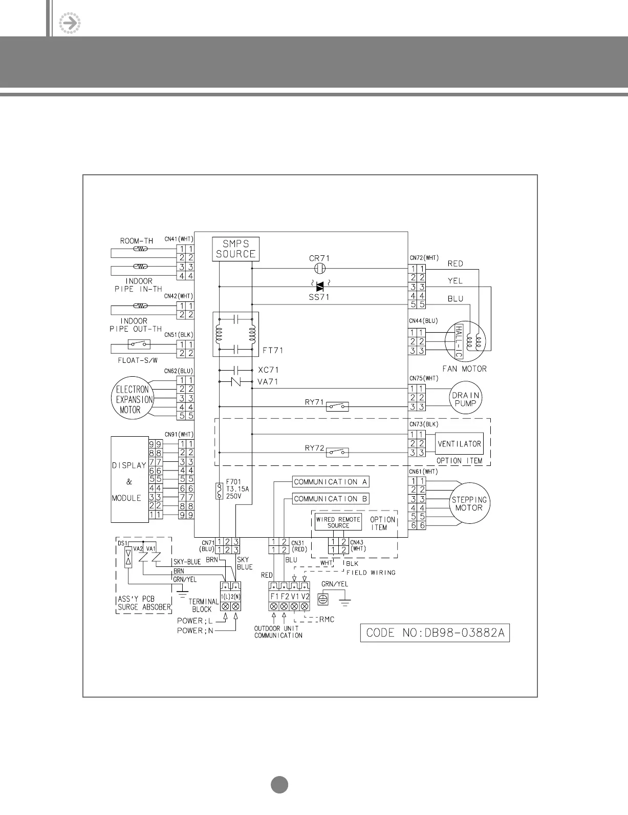
. Indoor unit
7. Electric circuit diagram
ΙΙΙ
48
(2) Heat pump (AVMKH
)
3-2.Indoor unit_TM_E_06890 2/27/03 10:14 AM Page 48

Table of Contents

Related product manuals