EasyManua.ls Logo

SawStop PCS175 - Professional Cabinet Saw Dimensions

SawStop PCS175
123 pages
Print Icon
To Next Page IconTo Next Page
To Next Page IconTo Next Page
To Previous Page IconTo Previous Page
To Previous Page IconTo Previous Page
Loading...
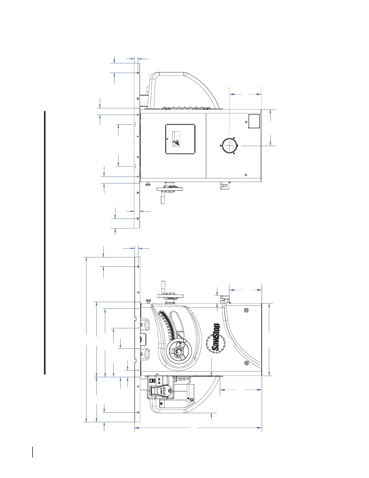
92 SawStop 10” Professional Cabinet Saw
Professional Cabinet Saw Dimensions
Front View
Rear View
!
WARNING
For your own safety,
read the instruction manual
before operating this saw.
1. Wear eye protection.
2. Use the blade guard and
spreader
for every operation for which it
can
be used, including all through
sawing.
3. Keep hands out of the line of the
saw blade.
4. Use a push-stick when required.
5. Know how to reduce the risk
of kickback.
6. Do not perform any operation
freehand.
7. Never reach around or over the
saw blade.
8. Never try to test fire the brake
system.
9. Never adjust the position of the
brake cartridge while the blade is
spinning.
10. Do not try to disable the brake
system.
11. Unplug the saw before changing
the blade, changing the brake
cartridge or servicing.
12. Do not connect the motor directly
to a power supply.
13. Use the bypass switch only when
necessary.
14. Do not expose to rain or use in
damp locations.
15. Do not put your hands inside or
underneath the cabinet while the
blade is spinning.
16. Do not unplug or disconnect the
saw from electrical power before
Para su propia seguridad,
lea el manual de instrucción
antes de usar la sierra.
1. Use las gafas de seguridad.
2. Use el dispositivo de seguridad de
la cuchilla y separador para cualquier
operación para la cual peuda ser
utilizada incluyendo todas las
operaciones de serrar completo o a
través.
3. Mantenga las manos fuera de la
trayectoria de la cuchilla de la sierra.
4. Utilice una vara de empujar cuando
está necesario.
5. Sepa reducir el riesgo del retroceso.
6. No realice ninguna operación a
mano alzada.
7. No ponga la mano alrededor o detrás
de la cuchilla.
8. Nunca trate de experimentar con el
sistema de frenos.
9. Nunca ajuste la posición del cartucho
del freno mientras que la cuchilla está
girando.
10. No trate de desconectar el sistema
de frenos.
11. Siempre desenchufe la sierra antes
de cambiar la cuchilla, el cartucho
del freno, o de mantenerla.
12. No conecte el motor directamente
con un abastecimiento.
13. Utilice el interruptor del bypass
solamente cuando está
necesario.
14. No exponga a la lluvia o al uso en
localizaciones húmedas.
15. No ponga las manos dentro de ni
debajo del gabinete mientras la
cuchilla gira.
16. No desenchufe ni desconecte la sierra
Pour votre propre sécurité,
lisez le manuel d’instruction
avant d’utiliser la scie.
1. Portez des lunettes de sécurité.
2. Utilisez le protecteur de lame
quel que soit le type d'opération.
3. Gardez les mains à l’écart de la
lame lorsqu’elle tourne.
4. Utilisez un poussoir de fin de
passe si nécessaire.
5. Limitez au maximum le risque
de rejet.
6. Ne travaillez pas à la volée.
7. Ne passez pas votre bras
par-dessus ou autour de la lame.
8. N’essayez jamais d'effectuer un
essai du circuit de freinage.
9. N’ajustez jamais la position de
la cartouche de frein lorsque la
lame tourne.
10. N’essayez pas de neutraliser le
circuit de freinage.
11. Débranchez la scie avant de
changer la lame, la cartouche
de frein, ou d’en faire l’entretien.
12. Ne branchez pas directement le
moteur à une prise de courant.
13. N'utilisez l’interrupteur de by-pass
qu'en cas de nécessité.
14. Ne pas exposer a la pluie et ne
pas utiliser dans les
emplacements humides.
15. Ne mettez pas les mains à
l’intérieur ou au-dessous de
cabinet lorsque la lame tourne.
16. Ne pas débrancher la scie du
pouvoir électrique avant que
la lame a arrêté de tourner.
!
WARNING
Moving belts and parts
can pinch, cut or crush.
Do not operate with
door open.
ADVERTENCIA
!
AVERTISSEMENT
!
44"
12"
2 9/16"
20"
1"
2 9/16"
18 1/4"
13 1/16"
1 3/4"
7 9/16"
34"
19 1/4"
8 3/4"
2"
11 1/4"
10"
1"
2 9/16"
2 9/16"
11 3/16"
1 3/4"
1 3/4"
8 1/2"
9 5/8"
!
WARNING
Moving gears and parts
can pinch, cut or crush.
Do not operate with
door open.
SawStop, the SawStop blade logo, and the
configuration of this product are either registered
trademarks or trademarks of SawStop, LLC.
Software copyright by SawStop, LLC. All rights
reserved. Protected by one or more of the
following U.S. patents 6813983, 6826988,
6857345, 6877410, 6880440, 6920814, 6945148,
6945149, 6957601, 6994004, 6997090, 7000514,
7024975, 7055417, 7077039, 7098800, 7100483,
7137326, 7171879, 7197969, 7210383, 7225712,
7228772, 7231856, 7284467, 7290472, 7308843,
7347131, 7350444, 7350445, 7353737, 7357056,
7359174, 7377199, 7421315 Taiwan patent
143466, Australia patent 785422, China patent
ZL00816099.6, and India patent 212026.
Additional U.S. and foreign patents pending.
1 1/2"

Table of Contents

Related product manuals