EasyManua.ls Logo

Siemens SIMATIC PC 670 - Motherboard

Siemens SIMATIC PC 670
200 pages
Print Icon
To Next Page IconTo Next Page
To Next Page IconTo Next Page
To Previous Page IconTo Previous Page
To Previous Page IconTo Previous Page
Loading...
Maintaining and Extending the Computing Unit
Release 04/02
4-6
Panel PC 670 Computing Unit, Equipment Manual
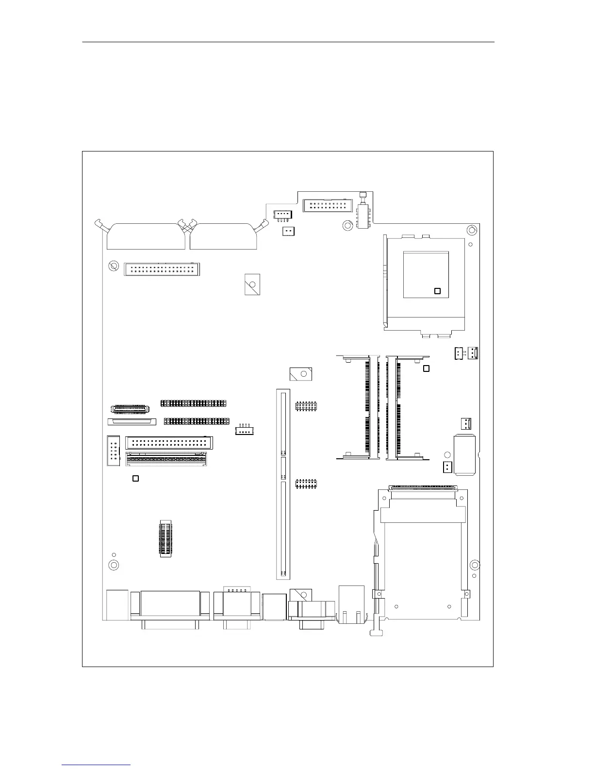
4.1.4 Motherboard
The motherboard is the heart of the computing unit. Here, data are processed and
stored, and interfaces and device I/Os are controlled.
X44
X400
X402
X401
S1
X1
X20
X19
X700
X29
X28
X128
X71
X70
X10
X500
X600
X40
X11
X9
X6
X13
X26
X31
X5
X4
X3
X25
X420
X24
X14
X23
T1
T2
T3
X41
Figure 4-3 Motherboard

Table of Contents

Related product manuals