EasyManua.ls Logo

Siemens SIRIUS 3RW50 - Page 226

Siemens SIRIUS 3RW50
238 pages
To Next Page IconTo Next Page
To Next Page IconTo Next Page
To Previous Page IconTo Previous Page
To Previous Page IconTo Previous Page
Loading...
Example circuits
A.3 Special applications
SIRIUS 3RW50 soft starter
226 Manual, 09/2019, A5E35628455002A/RS-AA/001
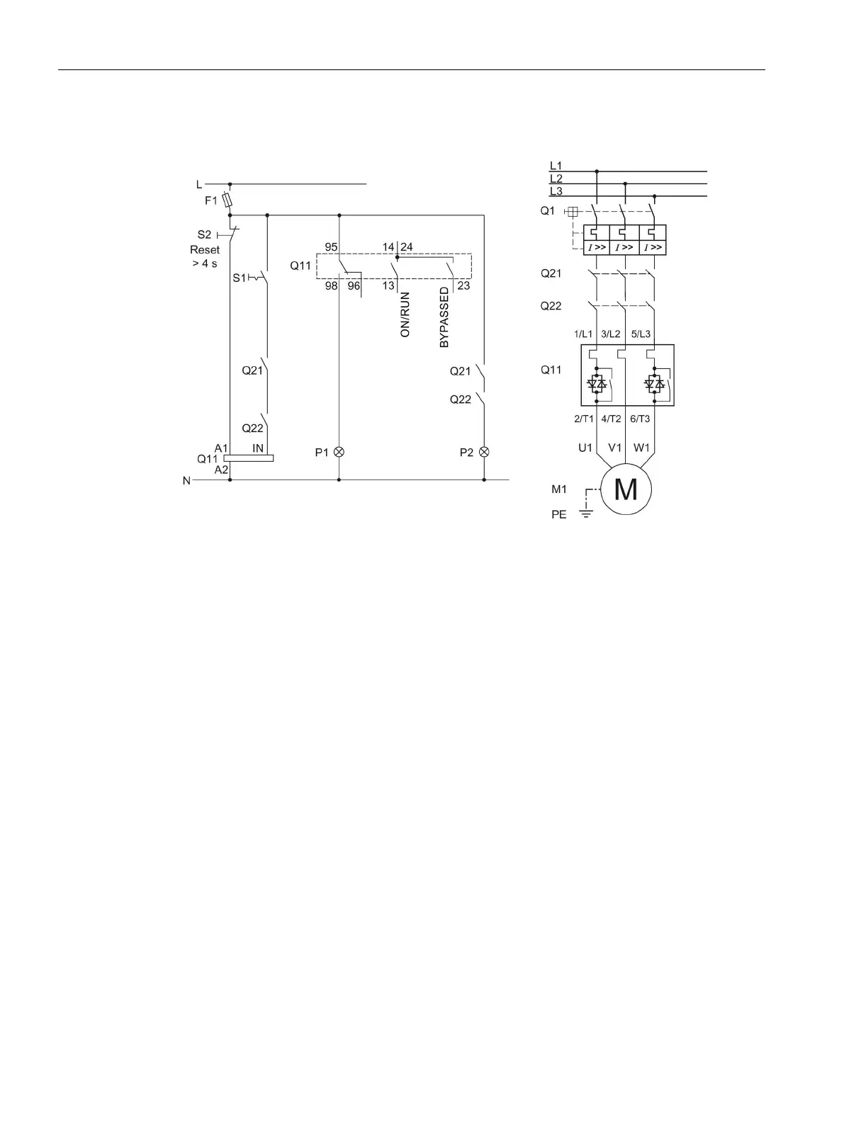
Wiring of the 3RW50 soft starter
F1
Fuse
S1
Switch: Start / stop
S2
Pushbutton: Reset > 4 s
Q1
Motor starter protector
Q11
3RW50 soft starter
Q21
Contactor
Q22
Contactor
P1
Indicator light
P2
Indicator light
M1
Motor

Table of Contents

Related product manuals