EasyManua.ls Logo

Sony HCD-CP2 - Tape Deck Section Block Diagram

Sony HCD-CP2
64 pages
Print Icon
To Next Page IconTo Next Page
To Next Page IconTo Next Page
To Previous Page IconTo Previous Page
To Previous Page IconTo Previous Page
Loading...
20
HCD-CP2
20
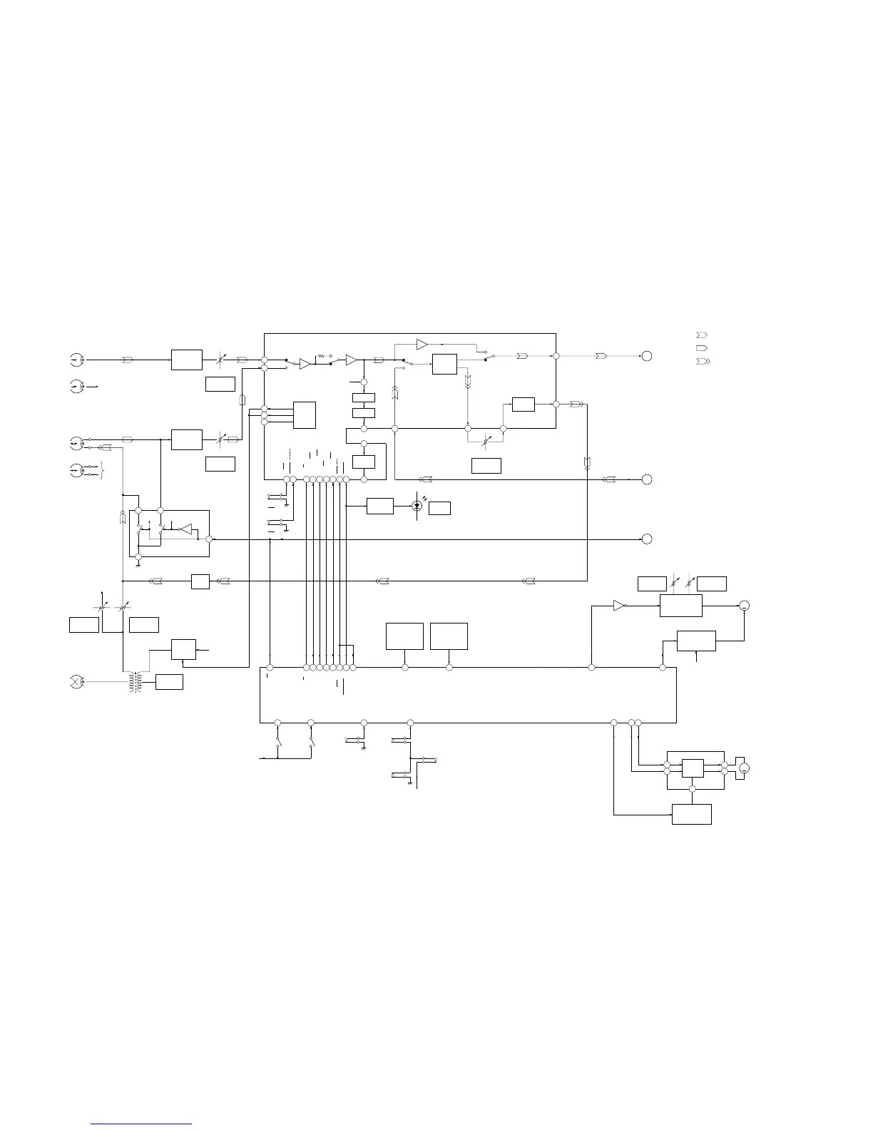
7-2. BLOCK DIAGRAM – TAPE DECK Section –
PB EQ AMP
(DECK A)
IC611
PB LEVEL (L)
(DECK A)
REC-L
REC/PB
PB-L
CAPSTAN MOTOR
CONTROL SWITCH
Q651
1
B
(Page 21)
(Page 21)
L-CH
R-CH R-CH
HP101
(PLAYBACK)
PB EQ AMP
(DECK B)
IC601
L-CH
R-CH R-CH
05
R-CH
R-CH
HRPE101 (1/2)
(RECORD/PLAYBACK)
REC
EQ AMP
AMS
CIRCUIT
DOLBY NR
AMP
CIRCUIT
BIAS
CONTROL
CIRCUIT
DOLBY PASS
R-CH
L.P.F.
BUFFER
Q406
M
M1
(CAPSTAN)
HRPE101 (2/2)
(ERASE)
BIAS OSC
T621
B+
(A+8V)
R-CH
3
4
28
6
11
8
9
21
15
12
20
16
17 18
19
1413
1
75
7
79 78
8
80
23
25
24
+
2
4
2
RV311
PB LEVEL (L)
(DECK B)
RV301
TAPE SPEED
(NORMAL)
RV651
TAPE SPEED
(HIGH)
RV652
REC LEVEL (L)
(DECK B)
RV301
REC BIAS (R)
(DECK B)
RV441
REC BIAS (L)
(DECK B)
BIAS OSC
Q621, 622
REC BIAS
SWITCH
Q623
ROTATION
DETECT SENSOR
(DECK A)
Q1001
RV341
BIAS
TRAP
C331, L331
REC/PB SWITCHING
IC602
SYSTEM CONTROLLER
IC802 (2/4)
DECK PROCESS
DECK A/B SELECT, PB/REC EQ AMP,
DOLBY NR AMP
IC401
AIN (L)
BIN (L)
MAOUT
PBOUT (L)
EQOUT
(L)
MSIN
MSOUT
BIAS-ON/OFF
70
120
NORM
CROM
METAL
S1004
A 120/70
NORM/CROM/METAL
PB-A/B
LM-ON/OFF
NR-ON/OFF
RM-ON/OFF
REC/PB/PASS
NORM/HIGH
(DECK A 120/70)
14
S1003
S1001
(DECK A PLAY)
S1002
(DECK B PLAY)
(DECK A HALF)
S1008
(DECK B 120/70)
27
RECOUT (L)
RIN (L)
EQIN (L)
10
68
16
TC-SHUT (A)
ROTATION
DETECT SENSOR
(DECK B)
Q1002
17
TC-SHUT (B)
NORMAL/HI
REC/PB
DOLBY
REC-MUTE
REC-BIAS
LINE MUTE
A/B
REC/PB
T-PLAY (A)
T-PLAY (B)
T-HALF (A)
39
S1006
(DECK B HALF)
S1009
(DECK B REC)
S1005
(DECK A REC)
D+5V
D+5V
T-MODE
10
CAP MOTOR H/L
CAPSTAN
MOTOR CONTROL
Q403, 407
TRIGGER
MOTOR CONTROL
Q408, 409
9
CAP MOTOR CON
15 18
C
(Page 22)
D
SIGNAL PATH
: PLAYBACK (DECK A)
: PLAYBACK (DECK B)
: RECORD
R-CH : Same as L-CH
TRIG MOTOR CON (B)
TRIG MOTOR CON (A)
M
5
6
2
4
10
MOTOR
DRIVE
TRIGGER MOTOR DRIVE
IC402
OUT1
VZ
OUT2
IN1
IN2
M2
(TRIGGER)
11
12
TRIG MOTOR H/L
13
3
HI DUB REC
LED DEIVE
Q816
D822
HI-SPEED
DUBBING
+12V (M)

Related product manuals