EasyManua.ls Logo

Sony RMT-D128A - Signal Processor Block Diagram

Sony RMT-D128A
115 pages
Print Icon
To Next Page IconTo Next Page
To Next Page IconTo Next Page
To Previous Page IconTo Previous Page
To Previous Page IconTo Previous Page
Loading...
DVP-NS400D
3-5 3-6
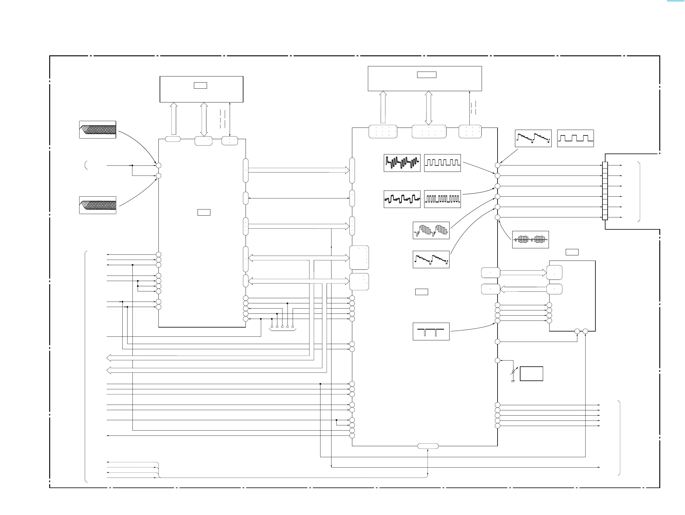
3-3. SIGNAL PROCESSOR BLOCK DIAGRAM
SDCK, XSHD,
XSRQ, XSAK, SDEF
SDCK
XSHD
XSRQ
XSAK
SDEF
DATA
BCLK
LRCK
DOUT
CDIN2I
CDIN1I
CDBCKI
CDLRKI
ICLKI
IERRI
ISTARTI
IVALI
IREQO
131
128
207
208
21
23
25
157
182
189
220
221
231
12
29
112
113
84
60
5 7
14
15
87
77
74
80
66
63
69
88
2
3
8
1
16
18
19
190
191
180
182
2
ı
9
11
ı
15
17
ı
19
31
ı
34
36
ı
39
62
63
65
66
68
ı
72
41
43
ı
46
73
ı
76
78
ı
81
27 36
MEMA 0 9
MEMD 0 15
ADAD 0 11
ADDT 0 15
124 125 127 128
130 131 133 134
136 137 139 140
157 160 162 165
167 168 170 171
173 174 176 177
192 193
195 198
200 203
205 208
210 213
215 218
2 5
7 10
232 235
237 240
102 105
107 110
92 95
97 100
23 24
26 28
30 32
9 11
14 18
143 144 146
147 149 151
152 154 155
44 51
53 60
38 39
41 42
IC303
16M DRAM
IC302
ARP
IC503
AV DECODER
IC504, 505
16M SDRAM
IC601
BNR
22
23
25
26
226 229
MB-98 BOARD (2/4)
(SEE PAGE 4-13 to 4-18)
RF+
RF/SERVO
(SEE PAGE 3-4)
SYSTEM CONTROL
(SEE PAGE 3-7)
05
RFIN1
RFIN2
SD 0 7
SDI 0 7 DTI 0 7
SDAD 0 11
MA 0 9
MD 0 15
SDDT 0 15
CDDATA, CDBCK,
CDLRCK, CDDOUT
CLK, CKE,
DQML, DQMU,
CS, WE,
CAS, RAS
OE, WE, RAS
LCAS, UCAS
C OUT
Y OUT
COMPOUT
B OUT
R OUT
G OUT
C
Y
V
Cr/B
Cb/R
Y/G
COUT
YOUT
COMPOUT
CR/B
CB/R
Y/G
PDO 0 7 PDO 0 7
PDI 0 7PDI 0 7
YCIN 0 7
YCOUT 0 7
VIDEO
(SEE PAGE 3-9)
AUDIO
(SEE PAGE 3-11)
27MVGA32
MRST
CK27
NRSDIN
SCS
FID
H SYNC
NRSDOUT
NRSENB
VREFI
D1CLKO
ACH12
ACH34
FLDO
HSYNCO
ACH56
LRCKO
BCKO
CDDOUT
ACH12
ACH34
ACH56
LRCK
BCK
VIDEO
LEVEL
ADJ
RV501
XRST
HD 0 15
HAD 0 21HA 0 21
HD 0 15D 0 7
A 0 7 HA 0 7
HD 8 15
XRD
XWRH
CDDOUT
RSTB
DM ACK1
DM REQ1
DM ACK0
DM REQ0
ACLK
CRPCLKI
HAD23
HAD22
CLKI
SCLKI
224
223
HWAIT0B
HIREQ0
HA 0 21
HD 0 15
HA 0 21
HD 0 15
XRST
512FSAVD
33MAVD
XARPRST
33MARP
XWRH
XRD
TRST
XARPIT
XARPCS
XWAIT
XAVDCS2
XAVDCS3
27MAVD
XAVDIT
DREQ0
DACK0
DREQ1
DACK1
XWR
XRD
XINT
XCS
XWAT
XARPRST
CLKIN
SCKI
CDDOUT
187 MCKI
195
194
193
192
TDO
TCK
TDI
TMS
191
118
120
119
121
122TRST
TDI
TCK
TDO
TMS
TRST
HCSB
HRWB
LAND
(FOR J TAG)
(2/2)
3
CN801 (1/3)
1
11
7
9
5
IC503 yd
: US, CND, E, MX, AR, BR
620 mVp-p (H)
IC503 yd : AEP, UK
(LINE : RGB mode)
660 mVp-p (H)
IC503 yh
: US, CND, E, MX, AR, BR
620 mVp-p (H)
IC503 yh : AEP, UK
(LINE : RGB mode)
660 mVp-p (H)
IC503 yl
: US, CND, E, MX, AR, BR
940 mVp-p (H)
IC503 yl : AEP, UK
(LINE : RGB mode)
660 mVp-p (H)
IC503 uf
940 mVp-p (H)
IC503 ik
3.2 Vp-p (H)
IC503 uj
810 mVp-p (H)
IC503 i;
1.1 Vp-p (H)
IC302 <zcz (DVD play)
500 mV/DIV 100 ns/DIV
1.4 Vp-p
1.4 Vp-p
IC302 <zx, (CD play)
500 mV/DIV 200 ns/DIV
Abbreviation
AR : Argentina
BR : Brazilian
CND : Canadian
MX : Mexican

Table of Contents

Related product manuals