EasyManua.ls Logo

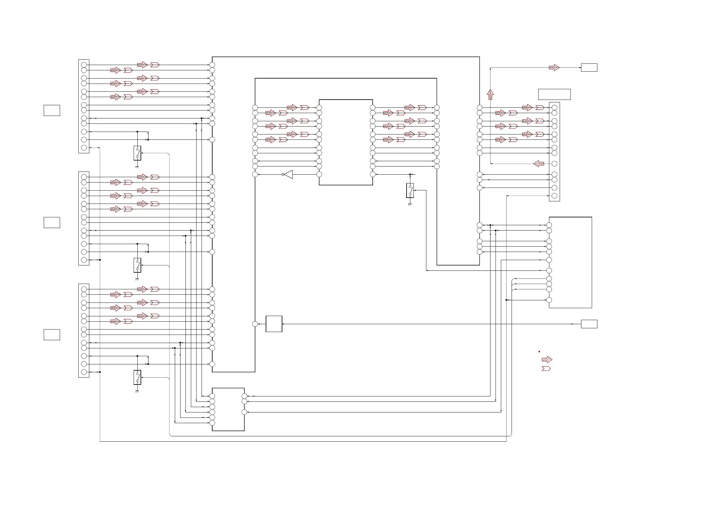
Sony SA-NT5 - SECTION 5 DIAGRAMS; HDMI Section Block Diagram

Sony SA-NT5
74 pages
Print Icon
To Next Page IconTo Next Page
To Next Page IconTo Next Page
To Previous Page IconTo Previous Page
To Previous Page IconTo Previous Page
Loading...
HT-NT5
HT-NT5
4141
SECTION 5
DIAGRAMS
5-1. BLOCK DIAGRAM - HDMI Section -
SYSTEM CONTROLLER
IC5001 (1/4)
7DATA0+
9DATA0–
4DATA1+
6DATA1–
1DATA2+
3DATA2–
10CLOCK+
12CLOCK–
16SDA (5V)
15SCL (5V)
19HOT PLUG DET
18+5V POWER
13CEC
HDMI REPEATER
IC3000
22
24
25
27
28
30
19
21
214
213
215
P1TX1P
P1TX1M
P1TX0P
P1TX0M
P1TXCP
P1TXCM
P1TX2P
P1TX2M
TXD1SDA
TXD1SCL
TX1HPD
7DATA0+
9DATA0
4DATA1+
6DATA1
1DATA2+
3DATA2
10 CLOCK+
12 CLOCK–
16 SDA (5V)
15 SCL (5V)
19 HOT PLUG DET
14 ARC
CEC
CN3004
HDMI OUT
TV (ARC) HDCP 2.2
7DATA0+
9DATA0–
4DATA1+
6DATA1–
1DATA2+
3DATA2–
10CLOCK+
12CLOCK–
16SDA (5V)
15SCL (5V)
19HOT PLUG DET
18+5V POWER
13CEC
74 P3RX0P
73 P3RX0M
77 P3RX1P
76 P3RX1M
80 P3RX2P
79 P3RX2M
71 P3RXCP
70 P3RXCM
110 RX3SDA
111 RX3SCL
106
RX3P5V
7DATA0+
9DATA0–
4DATA1+
6DATA1–
1DATA2+
3DATA2–
10CLOCK+
12CLOCK–
16SDA (5V)
15SCL (5V)
19HOT PLUG DET
18+5V POWER
13CEC
CN3001
HDMI IN 3
HDCP 2.2
CN3002
HDMI IN 2
HDCP 2.2
HDMI IN 1
HDCP 2.2
CN3010
98 Pana_SDA
97 Pana_SCL
99 Pana_INT
104 Pana_RESET
87 Pana_WPB
129 M T K _ H P D
121 Pana_IN1_HPD
140 CEC_TX_RX
ARC_SPDIF
>001B
27M_CLK
>002B
: VIDEO
: AUDIO (DIGITAL)
SIGNAL PATH
SYSCLK/XI 170
EEPROM
IC3012
SDA0
6
SCL0
7
141 P 0 R X 0 P
140 P 0 R X 0 M
144 P 0 R X 1 P
143 P 0 R X 1 M
147 P 0 R X 2 P
146 P 0 R X 2 M
138 P0RXCP
137 P0RXCM
159 RX0SDA
160 RX0SCL
168HSDA0
166HSCL0
102NIRQ0
88 Pana_OSD_INT150NOSDIRQ
167NRESET
35
33
38
36
41
39
42
44
1
216
2
P0TX2M
P0TX2P
P0TX1M
P0TX1P
P0TX0M
P0TX0P
P0TXCP
P0TXCM
TX0SDA
TX0SCL
TX0HPD
P27 HDMI_RX_0
P28 HDMI_RX_0B
N27 HDMI_RX_1
N28 HDMI_RX_1B
M27 HDMI_RX_2
M28 HDMI_RX_2B
R27 HDMI_RX_C
R28 HDMI_RX_CB
AF27
DDC_SDA_RX
AF28
DDC_SCL_RX
AE25
HTPLG_RX PANA_5V
F27
F28
E27
E28
D27
D28
G27
G28
AB26
AB25
AD28
CH0_P
CH0_M
CH1_P
CH1_M
CH2_P
CH2_M
CLK_P
CLK_M
HDMISD
HDMISCK
HTPLG
PANA_IN1_HPD
87 P2RX0P
86 P2RX0M
90 P2RX1P
89 P2RX1M
93 P2RX2P
92 P2RX2M
84 P2RXCP
83 P2RXCM
112 RX2SDA
113 RX2SCL
107 RX2P5V
PANA_IN2_HPD
128 P 1 R X 0 P
127 P 1 R X 0 M
131 P 1 R X 1 P
130 P 1 R X 1 M
134 P 1 R X 2 P
133 P 1 R X 2 M
125 P1RXCP
124 P1RXCM
157 RX1SDA
158 RX1SCL
108 RX1P5V
PANA_IN3_HPD
11 SDA3
10 SCL3
WPB
4
14 SDA2
15 SCL2
3SDA1
2SCL1
HOT PLUG
DETECT SWITCH
Q3003
HOT PLUG
DETECT SWITCH
Q3000
HOT PLUG
DETECT SWITCH
Q3002
HOT PLUG
DETECT SWITCH
Q3001
SoC
IC101 (1/3)
Q602
PANA_IN1_HPD
122 Pana_IN2_HPD
PANA_IN2_HPD
123 Pana_IN3_HPD
PANA_IN3_HPD
CLOCK
BUFFER
IC3011
13
(Page 42)
(Page 42)

Table of Contents

Related product manuals