EasyManua.ls Logo

Sony VPL-EX145 - 6 Frame Wiring

Sony VPL-EX145
88 pages
Print Icon
To Next Page IconTo Next Page
To Next Page IconTo Next Page
To Previous Page IconTo Previous Page
To Previous Page IconTo Previous Page
Loading...
6-1
VPL-EX100
6-1
2
3
4
5
1
A B C D E F G H
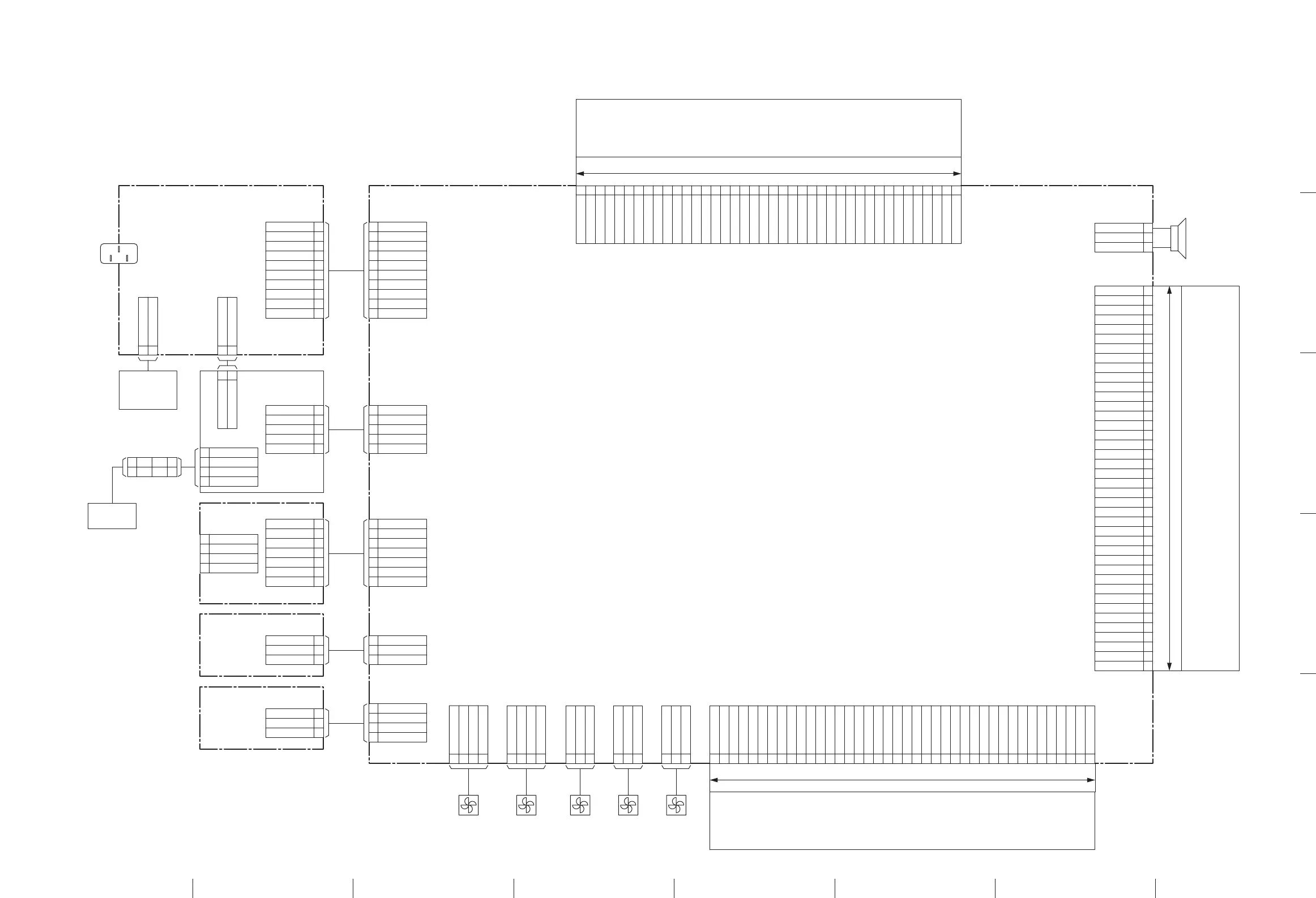
Section 6
Frame Wiring
Frame WiringFrame Wiring
Frame Wiring
G
SUB17.5V
SUB17.5V
GND
GND
SUB6.5V
SUB6.5V
GND
GND
POWER_ON
NONECO_ON
1
2
3
4
5
6
7
8
9
10
SUB17.5V
SUB17.5V
GND
GND
SUB6.5V
SUB6.5V
GND
GND
POWER_ON
NONECO_ON
1
2
3
4
5
6
7
8
9
10
ECO3.3V
1
2
3
4
5
6
7
1
2
3
4
5
6
7
TH1
TH2
1
2
DC_+
DC__
1
3
DC_+
DC__
1
3
THERMAL
FUSE
!
!
!
LAMP_RXD_C
LAMP_RXD_E
VCC
LAMP_ON
LAMP_TXD
1
2
3
4
5
1
2
3
4
5
LAMP_RXD_C
LAMP_RXD_E
VCC
LAMP_ON
LAMP_TXD
LAMP
GND
GND
LAMP
1
2
+
_
1
2
+
_
1
2
3
4
DEVICE_VBUS
DEVICE_D+
DEVICE_D_
GND
1
2FOR
SERVICE
3
4
BALLAST
LAMP
SIRCS_NF
GND
EXT_TEMP
DEVICE_VBUS
DEVICE_D+
DEVICE_D_
NFTA
ECO3.3V
SIRCS_NF
GND
EXT_TEMP
DEVICE_VBUS
DEVICE_D+
DEVICE_D_
LAMP_TEMP1
2
3
1
2
3
GND
GND
TL
LAMP_TEMP
GND
GND
CN700 4P
FAN A
(FOR INTAKE)
CN702 3P
CN602 7P
CN10 7P
CN20 3P
CN30 3P
CN701 5PCN2 5P
CN3 4P
CN11 4P
CN500 10P
CN101 3PCN1 3P
CN502 2P
AC IN
CN1
CN501 10P
LAMP_COVER
1
2
3
1
2
3
GND
GND
4
GND
U
LAMP_TEMP
GND
GND
CN1701 4P
FAN_A1
2
3
PROT_A
GND
4
N.C
FAN B
(FOR INTAKE)
CN1702 4P
FAN_B
1
2
3
PROT_B
GND
4
N.C
FAN C
(FOR LAMP DUCT)
CN1703 3P
FAN_C1
2
3
PROT_C
GND
FAN D
(FOR
EXHAUST
INNER SIDE)
CN1704 3P
FAN_D1
2
3
PROT_D
GND
FAN E
(FOR
EXHAUST
OUTER SIDE)
CN1705 3P
FAN_E
1
2
3
PROT_E
GND
1
2
3
4
5
6
7
8
9
10
11
12
13
14
15
16
17
18
19
20
21
22
23
24
25
26
27
28
29
30
31
32
33
34
35
36
37
38
39
40
VCOMR
PSIG
VSSGR
VSIG1
VSIG2
VSIG3
VSIG4
VSIG5
VSIG6
VSIG7
VSIG8
VSIG9
VSIG10
VSIG11
VSIG12
HVDD
DCK2
DCK2X
DCK1X
DCK1
HCK
HCKX
HST
HVSS
VSSGL
VVSS
ENB
VCK
VST
DWN
DIN
PCG
NC
NC
RGT
TEST
VVDD
VCOML
GCFB
NC
PANEL B
FLEXIBLE FLAT CABLE
PANEL R
FLEXIBLE FLAT CABLE
CN1400 40P
GREEN
1
2
3
4
5
6
7
8
9
10
11
12
13
14
15
16
17
18
19
20
21
22
23
24
25
26
27
28
29
30
31
32
33
34
35
36
37
38
39
40
VCOMR
PSIG
VSSGR
VSIG1
VSIG2
VSIG3
VSIG4
VSIG5
VSIG6
VSIG7
VSIG8
VSIG9
VSIG10
VSIG11
VSIG12
HVDD
DCK2
DCK2X
DCK1X
DCK1
HCK
HCKX
HST
HVSS
VSSGL
VVSS
ENB
VCK
VST
DWN
DIN
PCG
NC
NC
RGT
TEST
VVDD
VCOML
GCFB
NC
PANEL G
FLEXIBLE FLAT CABLE
CN1300 40P
RED
CN1500 40P
BLUE
1
2
3
4
5
6
7
8
9
10
11
12
13
14
15
16
17
18
19
20
21
22
23
24
25
26
27
28
29
30
31
32
33
34
35
36
37
38
39
40
VCOMR
PSIG
VSSGR
VSIG1
VSIG2
VSIG3
VSIG4
VSIG5
VSIG6
VSIG7
VSIG8
VSIG9
VSIG10
VSIG11
VSIG12
HVDD
DCK2
DCK2X
DCK1X
DCK1
HCK
HCKX
HST
HVSS
VSSGL
VVSS
ENB
VCK
VST
DWN
DIN
PCG
NC
NC
RGT
TEST
VVDD
VCOML
GCFB
NC
CN100
3P
1
2
3
SP+
SP_
SPEAKER
MAIN

Table of Contents

Other manuals for Sony VPL-EX145

Related product manuals