EasyManua.ls Logo

Still EXV 10 Basic - Overall Dimensions

Still EXV 10 Basic
154 pages
Print Icon
To Next Page IconTo Next Page
To Next Page IconTo Next Page
To Previous Page IconTo Previous Page
To Previous Page IconTo Previous Page
Loading...
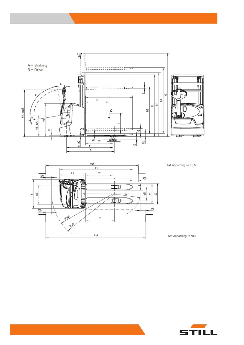
Overall dimensions
Technical data
6
Overall dimensions
118 45728043478 EN - 11/2021 - 09

Table of Contents

Related product manuals