EasyManua.ls Logo

Stryker ENDOSCOPY Standard - Cable Layout Plan

Stryker ENDOSCOPY Standard
44 pages
Print Icon
To Next Page IconTo Next Page
To Next Page IconTo Next Page
To Previous Page IconTo Previous Page
To Previous Page IconTo Previous Page
Loading...
US-6
DE
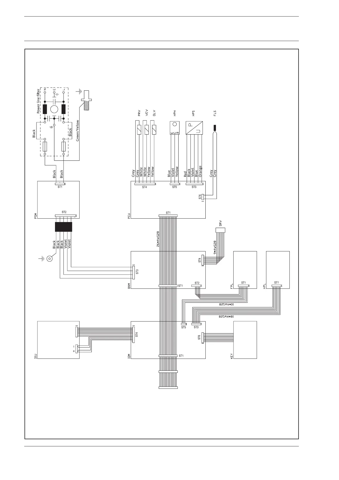
1-3 Cable Layout Plan
1 Introduction/Basics

Related product manuals