EasyManua.ls Logo

Sub-Zero 700-3 BASE - Sealed System Refrigerant Flow Diagram

Sub-Zero 700-3 BASE
114 pages
Print Icon
To Next Page IconTo Next Page
To Next Page IconTo Next Page
To Previous Page IconTo Previous Page
To Previous Page IconTo Previous Page
Loading...
Sealed System Information
Integrated
(700-
3
BASE)
Series
4-6
#3758424 - Revision B - December, 2005
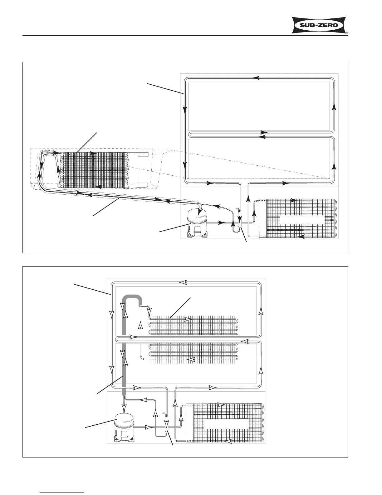
SEALED SYSTEM REFRIGERANT FLOW DIAGRAM
Figure 4-1. Model 700BC/I-2 Refrigerant Flow
Figure 4-2. Model 700BR-2 Refrigerant Flow
Compressor
Evaporator
Heater Loop
Heat Exchanger
Condenser
High-Side Filter Drier
Compressor
Evaporator
Heater Loop
Heat Exchanger
Condenser
High-Side Filter Drier

Table of Contents

Related product manuals