EasyManua.ls Logo

Swann AMI Codes-II - Page 16

Swann AMI Codes-II
106 pages
Print Icon
To Next Page IconTo Next Page
To Next Page IconTo Next Page
To Previous Page IconTo Previous Page
To Previous Page IconTo Previous Page
Loading...
14 A-96.250.571 / 050517
AMI Codes-II
Product Description
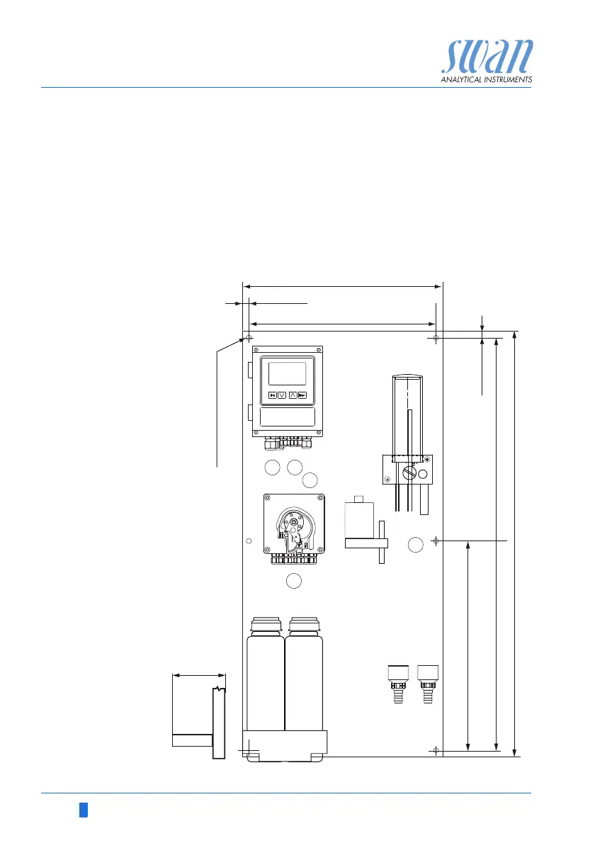
Dimensions Panel:
Mounting hole distance
Screws:
Weight:
400x850 mm
374x824
5 mm or 6 mm diameter
12.0 kg / 26.5 lbs without reagents and
sample water
17.0 kg / 37.5 lbs with reagents and sam-
ple water
AMI Codes II
824 mm / 32
7
/
16
412 mm / 16 ½ ”
850 mm / 33½”
13 mm / ½”
400 mm / 15¾”
374 mm / 14¾”
13 mm / ½”
6 x dia. 6.5 mm / ¼”
30 mm / 1 ”
3
16
/

Table of Contents

Related product manuals