EasyManua.ls Logo

Swegon GOLD SD - Humidity

Swegon GOLD SD
80 pages
Print Icon
To Next Page IconTo Next Page
To Next Page IconTo Next Page
To Previous Page IconTo Previous Page
To Previous Page IconTo Previous Page
Loading...
GB.GOLDSK509.091101
We reserve the right to alter specifications without notice.
www.swegon.com 37
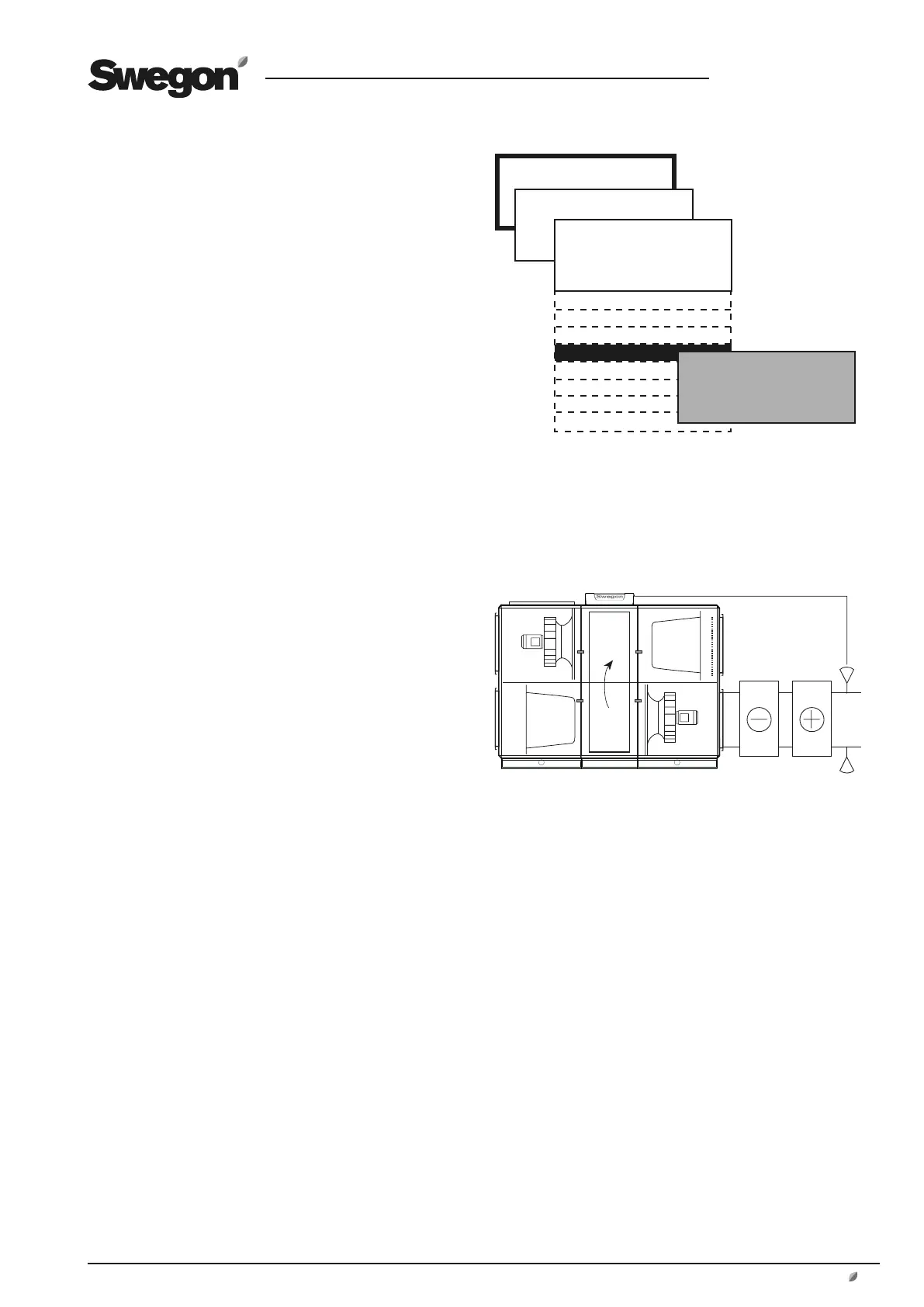
Temperature sensor,
supply air
Moisture sensor, TBLZ-1-31-1
Example of dehumidification control
8.8 Humidity
Dehumidification control
The dehumidification function controls the moisture in the
supply air duct by switching in and switching out a cooling coil
and a postheating coil.
The function requires that a cooling coil be mounted upstream of
a postheating coil in the supply air duct, see the example to the
right.
The TBLZ-1-31-1 moisture sensor is mounted in the supply air
duct and its cable is connected to the appropriate terminal on
the GOLD unit.
Cooling energy is emitted to condense the moisture in the supply
air flow, which then is heated to the desired supply air tem-
perature. This causes a reduction in the moisture content of the
supply air.
The cooling unit used must be sized so that the temperature of
the supply air will be below the dew point, otherwise no conden-
sation will arise and no dehumidification will occur.
Settings:
Value Setting Factory
range settings
Dehumidification Inactive/active Inactive
Supply air – rel. humidity (%RH) 10-90% 50%
INSTALLATION
FUNCTIONS
*FUNCTIONS*
TEMPERATURE
AIR FLOW/PRESSURE
FILTER
OPERATION
HEATING
COOLING
HUMIDITY
ReCO
2
IQnomic Plus
ALL YEAR COMFORT
CONTROL Optimize
*HUMIDITY*
DEHUMIDIF. CTRL.

Table of Contents

Other manuals for Swegon GOLD SD

Related product manuals