EasyManua.ls Logo

Swegon GOLD SD - 19 Technical Data; Dimensions, GOLD RX One-Piece Unit with Rotary Heat Exchanger

Swegon GOLD SD
80 pages
Print Icon
To Next Page IconTo Next Page
To Next Page IconTo Next Page
To Previous Page IconTo Previous Page
To Previous Page IconTo Previous Page
Loading...
GB.GOLDSK509.091101
We reserve the right to alter specifications without notice.
www.swegon.com 59
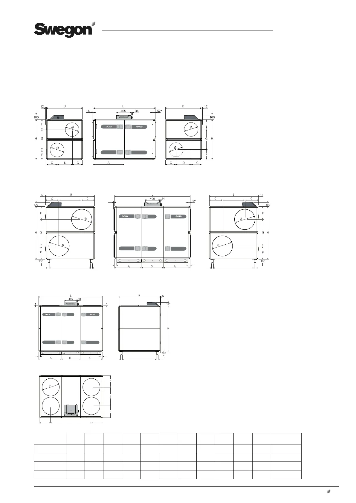
19 TECHNICAL DATA
19.1 Dimensions, GOLD RX one-piece unit with rotary heat exchanger
GOLD 04/05, 08
GOLD 12
52
50 50
52
16
16
J
CKC
GOLD Top 12
* The air handling unit is supplied without end
connection if a duct accessory housed in an
insulated casing will be connected.
Size A B C D F G H J K L Ø Weight, kg
04/05 750 825 240 345 230 460 920 1500 315
243
08 800 995 277.5 440 271 543 1085 1600 400 309
12 655 1199 324 550 324 647 1295 935 551 1860 500 518
Top 12 655 119 9 332 550 333 533 1295 935 119 6 1860 500 404
* The air handling unit
is supplied without end
connection if a duct
accessory housed in an
insulated casing will be
connected.

Table of Contents

Other manuals for Swegon GOLD SD

Related product manuals