EasyManua.ls Logo

TechnipFMC Smith Meter AccuLoad IV - Page 14

TechnipFMC Smith Meter AccuLoad IV
72 pages
Print Icon
To Next Page IconTo Next Page
To Next Page IconTo Next Page
To Previous Page IconTo Previous Page
To Previous Page IconTo Previous Page
Loading...
AccuLoad IV Installation & Maintenance Manual
Introduction 9
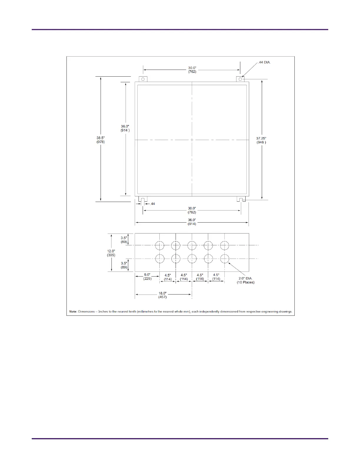
Figure 8: AccuLoad IV SA FCM

Table of Contents

Related product manuals