EasyManua.ls Logo

Toshiba VF-PS1 - Terminal Board Operation

Toshiba VF-PS1
307 pages
To Next Page IconTo Next Page
To Next Page IconTo Next Page
To Previous Page IconTo Previous Page
To Previous Page IconTo Previous Page
Loading...
E6581386
G-2
7
7.2 Applied operation with input and output signals (operation by terminal board)
7.2.1 Functions of input terminals (in case of sink logic)
Use the above parameters to send signals from an external programmable controller to various control input terminals
to operate and/or set the inverter.
The desired contact input terminal functions can be selected from about 80 types. This gives system design flexibility.
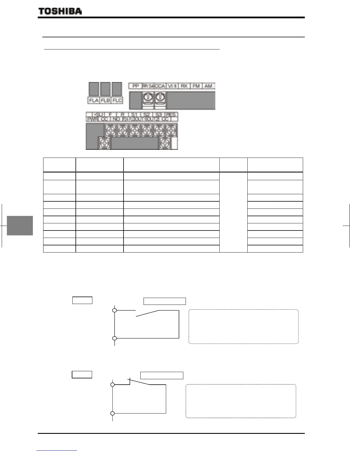
[Control terminal board]
Q Setting of contact input terminal function
Terminal
symbol
Title Function
Adjustmen
t range
Default setting
-  Always ON function selection 1 (Standby)
- ,  Always ON function selection 2, 3
(No function is
assigned)
F  Input terminal function selection 1 (F) (Forward run)
R  Input terminal function selection 2 (R) (Reverse run)
RES  Input terminal function selection 4 (RES) (Reset)
S1  Input terminal function selection 5 (S1)  (Preset speed 1)
S2  Input terminal function selection 6 (S2) (Preset speed 2)
S3  Input terminal function selection 7 (S3) (Preset speed 3)
RR/S4  Input terminal function selection 8 (RR/S4) (Preset speed 4)
LI1~LI8 ~ Input terminal function selection 9~16
~
Refer
to Section
7.2.1.
Note: When ,  and  (Always ON function selection 1~3) are selected, selected function is
generally activated regardless of positive or negative logic.
Note: ~ is for use of expansion terminal board option unit.
Q Connection method
1) In case of positive logic (a-contact) input
Inverter
A-contact switch
CC
Input terminal
+
This function is activated when the input
terminal and CC (common) are short-circuited.
Use this function to specify forward/reverse
run or a preset speed operation.
2) In case of negative logic (b-contact) input
B-contact switch
CC
Input terminal
+
This function is activated when the input
terminal and CC (common) are open-circuit.
Use this function to specify operation standb
y
signal or reset signal.
Inverter

Table of Contents

Related product manuals