EasyManua.ls Logo

Tuttnauer 6671130 - Generator Control Electrical Cascade Diagram

Tuttnauer 6671130
143 pages
Print Icon
To Next Page IconTo Next Page
To Next Page IconTo Next Page
To Previous Page IconTo Previous Page
To Previous Page IconTo Previous Page
Loading...
MAN205-0195042EN Rev. A Aug. 2011
Page 21 of 137 pages
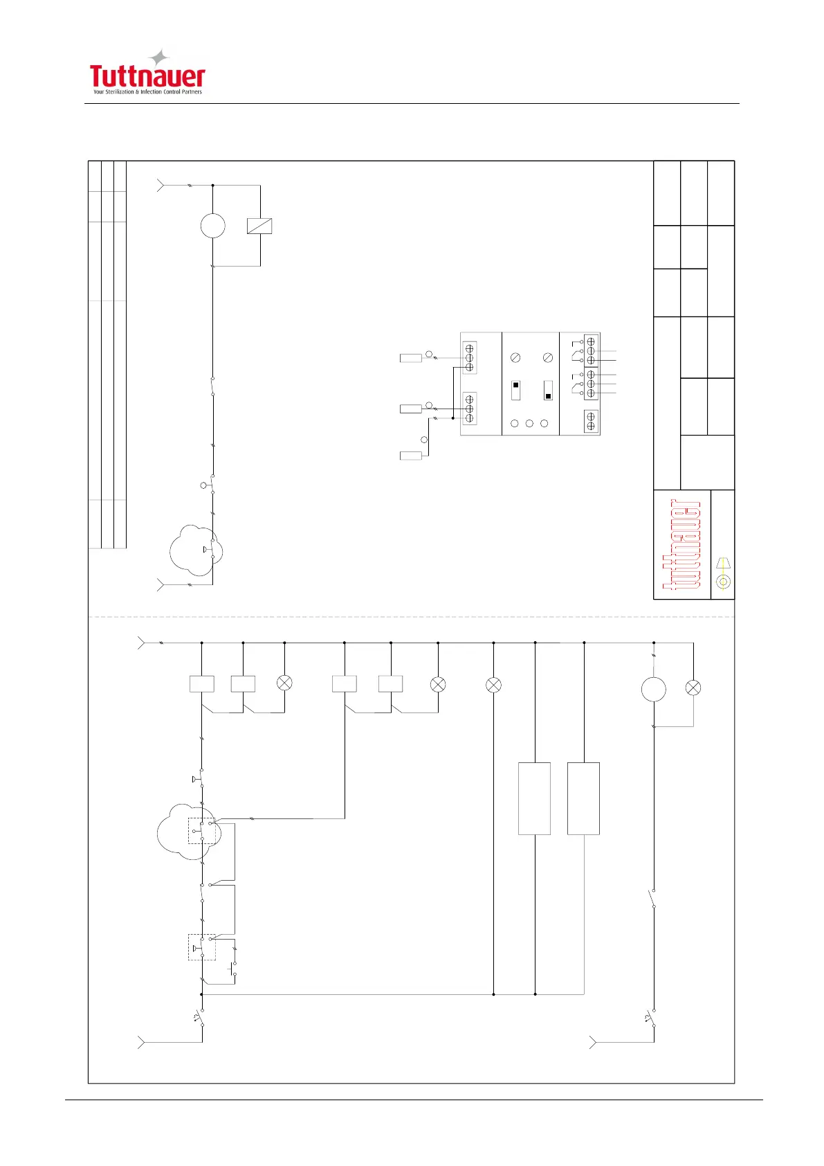
GENERATOR CONTROL ELECTRICAL CASCADE DIAGRAM
Description:
Design:
Rev No.
Drawing:
Prepared by:
Job No.
Approved by:
Scale:
Quant./Job:
Drawing No.
Cat. No.
Q. C.
Quant./Unit:
01
ISO
A3
Preparation By:
Description Date Rev. No ECO
Generator Control Electrical Cascade Diagram
for 2 sets of heater with neutral
ES1G08-0001-N
Page:
From:
3
4
Marchel N.
Yuval S.
See page 1
Heater 2
C2
A1 A2
N
R1
Water Pump
Water Lamp
CB3
4A
T
Heater 1
C1
A1 A2
L
Steam
Pressure
TB1
Heaters Lamp
Power
TC1
D1
37
L
CB4
4A
T
Pressure
Cut off
33
32
NO
Level Elec. Low
RL1
Q0/L1
Fault Alarm
Q0/L2
2
TB3
TB3
PS
24VDC
L N
GICAR
2DRLH
L N
38
~ VAC
Temperature
Cut off
36
M
D2
35
34
TC Test
Trip coil 1
TC2
D1 D2
Trip coil 2
24VDC
+ -
Level Elec. High
RL2
Water Supply
Pressure/Float
43
Air Supply
Pressure
42
NC
R1
2
1
Water Valve
41
40
39
Water Relay
GICAR 2DRLH
S
R
1
S
M
1
S
m
1
S
R
2
S
M
2
S
m
2
RL1
RL2
S
E
S E
L N
RL1
RL2
Water
Pump
Heater
Electrode
Low Low
Reference
Electrode
low
(heater)
Electrode
high
(water )
44 45 46
VAC
1
2 3
36 33 35

Table of Contents