EasyManua.ls Logo

Vertiv CoolPhase CDU - Page 133

Vertiv CoolPhase CDU
157 pages
Print Icon
To Next Page IconTo Next Page
To Next Page IconTo Next Page
To Previous Page IconTo Previous Page
To Previous Page IconTo Previous Page
Loading...
20000101
Page :2/2
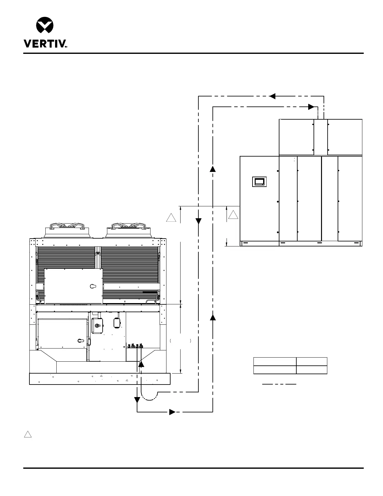
AIR COOLED PIPING SCHEMATIC
COOLPHASE CDU
DPN001040_REV6
REV : B
REV : 08/2024
Liebert® MCV Condenser
Unit
Liebert® EconoPhase
Unit
Field Piping
Liquid
Return
Hot Gas Discharge
Hot Gas
Discharge
CIRCUIT 1
CIRCUIT 2
2
Hot Gas
Discharge
54 7/8"
1393mm
Ref.
LIEBERMCV WITHOUT RECEIVER MOUNTED BELOW XDM300
Liquid Return
Liquid
Return
Hot Gas Discharge
2
XDM300
XDM300
Internal EEV
Height
H
Notes:
1. Single refrigerant circuit shown for clarity, for XDM300 units refrigerant connections are typical.
2. The bottom of the condenser coil cannot be more than 15' (4.6m) below the elevation of the EEVs inside the indoor unit.
3. Unit must be trapped at bottom of riser with any rise over 5 feet (1.5m) high. If rise exceeds 25 feet (7.5m), then a trap is required in 20 foot (6.1m) increments or evenly divided.
4. Pitch horizontal hot gas piping at a minimum of ½ inch per 10 feet (42mm per 10m) so that gravity will aid in moving oil in the direction of the refrigeration flow.
5. All indoor and outdoor field refrigerant piping must be insulated, ½ inch minimum. All outdoor insulation must be UV and ozone resistant.
6. Consult factory for any exceptions to the above guidelines.
15' (4.6m)
Maximum Vertical
Rise
Internal EEV Height H inch (mm)
XDM300 62 (1575)

Table of Contents

Related product manuals