EasyManua.ls Logo

Vi.Be.Mac 3022LV - CROCHET HOOKS START MOVEMENT CAM

Default Icon
28 pages
Print Icon
To Next Page IconTo Next Page
To Next Page IconTo Next Page
To Previous Page IconTo Previous Page
To Previous Page IconTo Previous Page
Loading...
VI.BE.MAC.S.p.A. 3022LV
Page 19
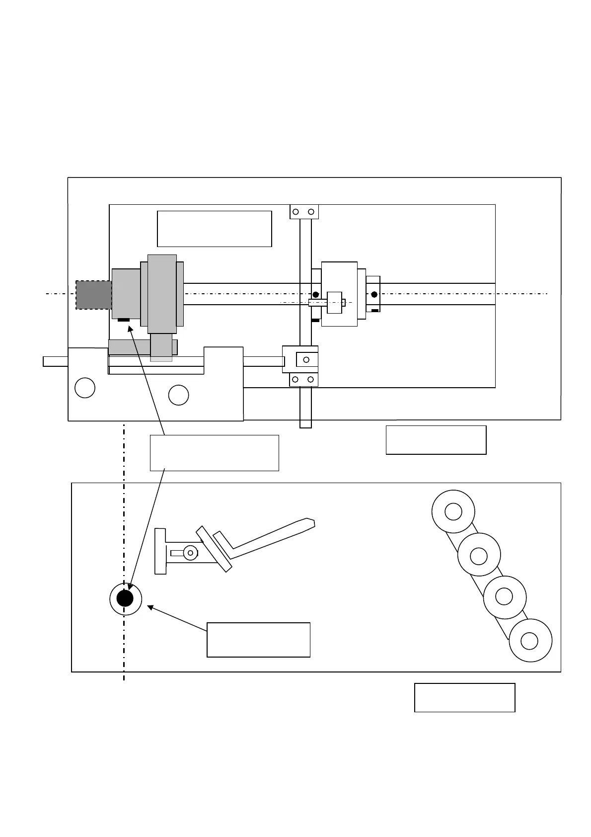
15.6 CROCHET HOOKS START MOVEMENT CAM
This cam serves to move the crochet hooks in synchrony with the needle, descent of the needle bar and subsequent backward
movement of the crochet hooks and vice versa.
15.6.1 POSITION
In order to position the crochet hooks start movement cam correctly with respect to the needle, place the needle bar at bottom dead
centre.
The cam should be positioned with the second screw pointing outwards. Check its position against the two illustrations below:
Second screw position in
direction of rotation
Service hole
BIRD’S EYE VIEW
Eccentric that moves the
Looper timing
FRONT VIEW

Related product manuals