EasyManua.ls Logo

Viessmann VITOCELL 100-U - Sample Application 1 - Vitocell 100-L with Vitotrans 222 and Boiler with Vitotronic

Viessmann VITOCELL 100-U
56 pages
Print Icon
To Next Page IconTo Next Page
To Next Page IconTo Next Page
To Previous Page IconTo Previous Page
To Previous Page IconTo Previous Page
Loading...
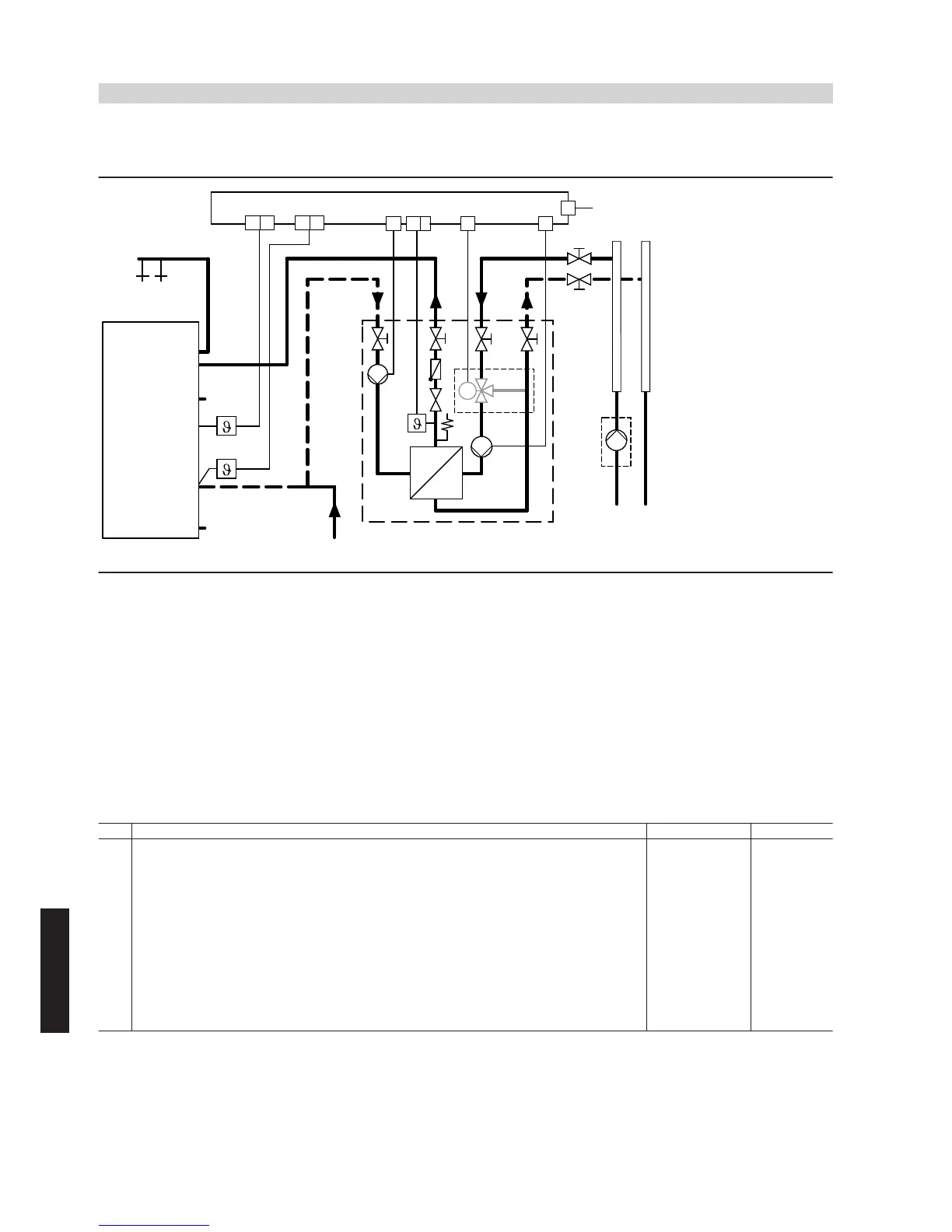
Sample application 1 – Vitocell 100-L with Vitotrans 222 and boiler with Vitotronic
(modulating boiler operation)
M
17
40
B
21
20
52
55 B55 A
A1A1
4
A
E
C D
3
B
5
1
2
A
Power supply connection 230 V~ 50 Hz; install a mains isolator in
accordance with regulations
B
Heating circuit pump (primary), highly efficient
C
Flow distributor (under pressure)
D
Return collector
E
Additional motorised valve in the flow to the Vitotrans 222 if the
differential pressure between the flow distributor and the return
collector > 3 bar (0.3 MPa)
The Viessmann NTC cylinder temperature sensor, which is part of the
Vitotronic standard delivery (accessory for Vitotronic 200-H and
Vitotronic 100), is supplemented by a second cylinder temperature
sensor (mixer assembly standard delivery).
The top cylinder temperature sensor is connected to plug
%
A, while
the bottom one is connected to plug
%
B.
System-specific coding at the Vitotronic
4
Set code "4C : 1":
Use of output as primary pump for the heat exchanger set.
Set code "4E : 1":
Use of output
gS
as primary control for the heat exchanger set.
Set code "55 : 3":
Use of cylinder temperature control for the heat exchanger set.
Set code "6A : 113":
With Vitotrans 222, 240 kW, servomotor runtime 113 s.
Required components
Pos. Title Number Part no.
1
Vitocell 100-L, 500 l (shown), or subject to system Z002 074
Vitocell 100-L, 750 l, or subject to system Z004 042
Vitocell 100-L, 1000 l subject to system Z004 043
2
Vitotrans 222
up to 80 kW 1 7453 039
up to 120 kW 1 7453 040
up to 240 kW 1 7453 041
3
Mixer assembly (incl. 3-way mixing valve, servomotor, sensors, pipework) for the Vitotrans 222
up to 120 kW 1 7164 620
up to 240 kW 1 7164 621
4
Vitotronic 200-H and Vitotronic 100, type GC1B or type GC4B 1 see pricelist
5
In connection with the Vitotronic 200-H and Vitotronic 100, type GC1B or type GC4B:
Immersion temperature sensor (Viessmann NTC) as cylinder temperature sensor
1
7438 702
Installation — cylinder loading system
(cont.)
46
VIESMANN
DHW heating
7
5414 646 GB

Table of Contents

Other manuals for Viessmann VITOCELL 100-U

Related product manuals